Chilsworthy - Kernow House And Site For 5 Houses
Kernow House is situated on a very generously sized plot of approximately 2.44 acres on the northern edge of the village of Chilsworthy. It has recently benefitted from the granting of outline planning permission for the erection of 5 detached dwellings on the paddock area to the north and west of the existing house and the owners are now seeking to sell the whole property with the planning permission.
Access to the development land will be through the pillared entrance and over the existing driveway to the south of the main house and then through the field gateway at the end of the drive next to the rear corner of the integral garage.
The land slopes up from south to north, with a steeper gradient over the initial southern section and then a more gentle slope for the majority of the field, with far-reaching views from the upper parts of the field to the south east over the existing dwelling towards Dartmoor. The whole field is included within the sale (red and blue outlines on location plan), although you will note that the red line for the planning permission area does not extend to the northern hedge-line.
View of house from western boundary
Illustrative Site & Location Plans
Main house from access
Site looking NW
Site from NW corner
Lounge
Ground Floor Hallway
Rear of House
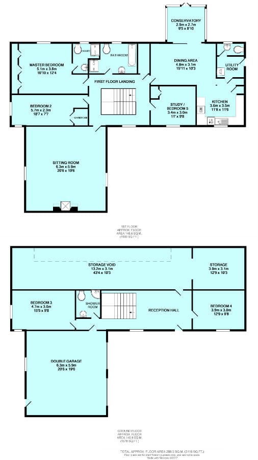
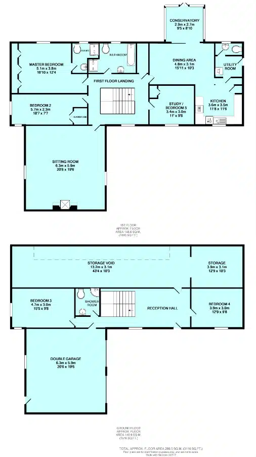
Existing House Floor Plan








Property reference
294Property details
| Price: | Offers in the region of £700,000 |
| Status: | Sold |
| Location: | Holsworthy |
| Plots: | 5 |
| Surveyor: | Philip Taverner |
