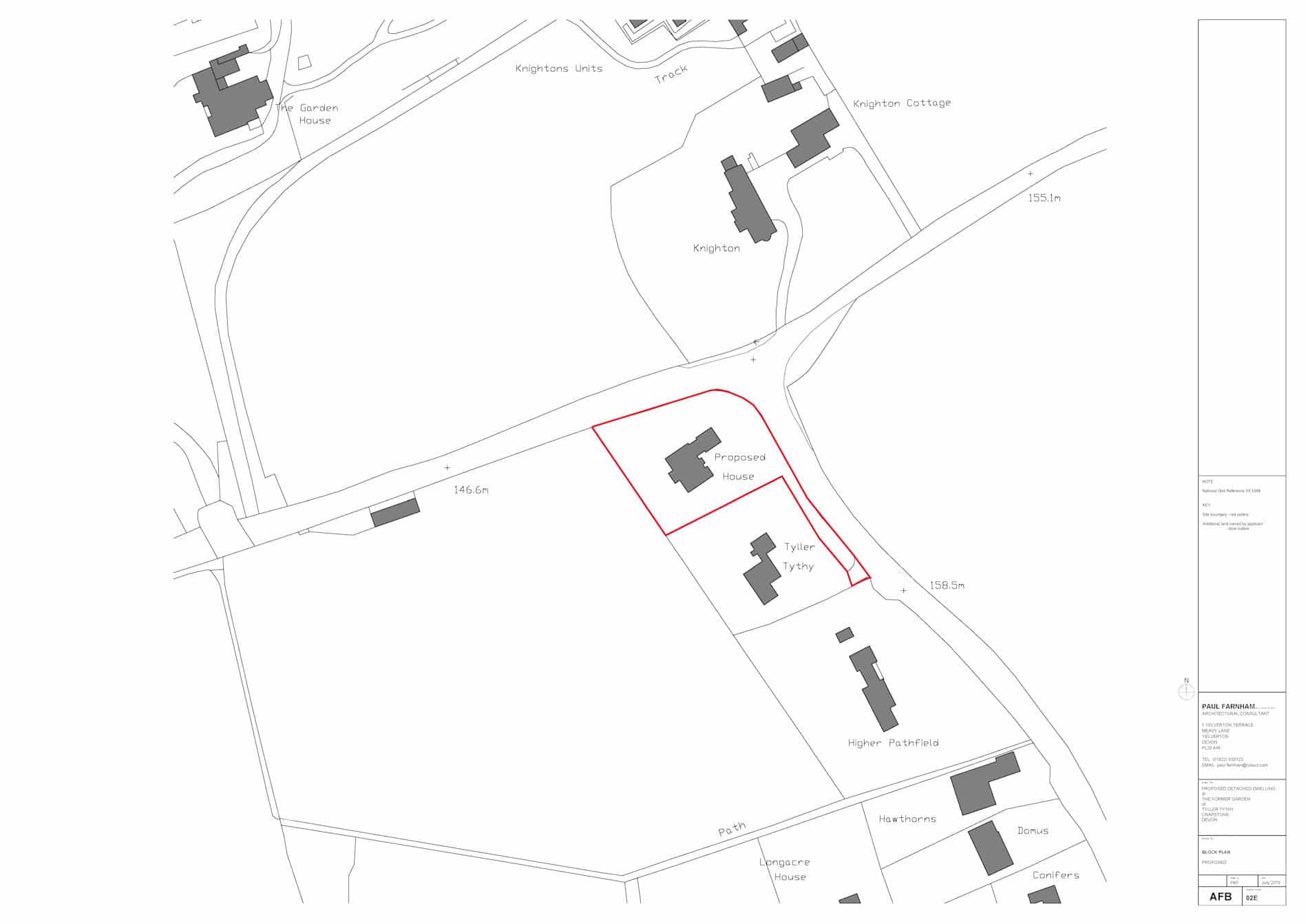
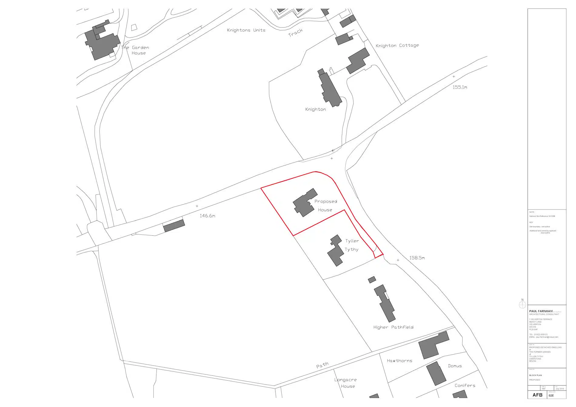
Crapstone - Plot Adjacent To Tyller Tythy
This is a rare opportunity to acquire a generously sized building plot with the benefit of full detailed planning permission (Ref.2336/18/FUL) for a large two-storey house with a gross internal floor area (excluding the garage) of approximately 254sqm (2,735sqft). The plot is within an Area of Outstanding Natural Beauty on the northern edge of the sought-after moorland village of Crapstone and benefits from far-reaching views to the south west over the Tamar Valley.
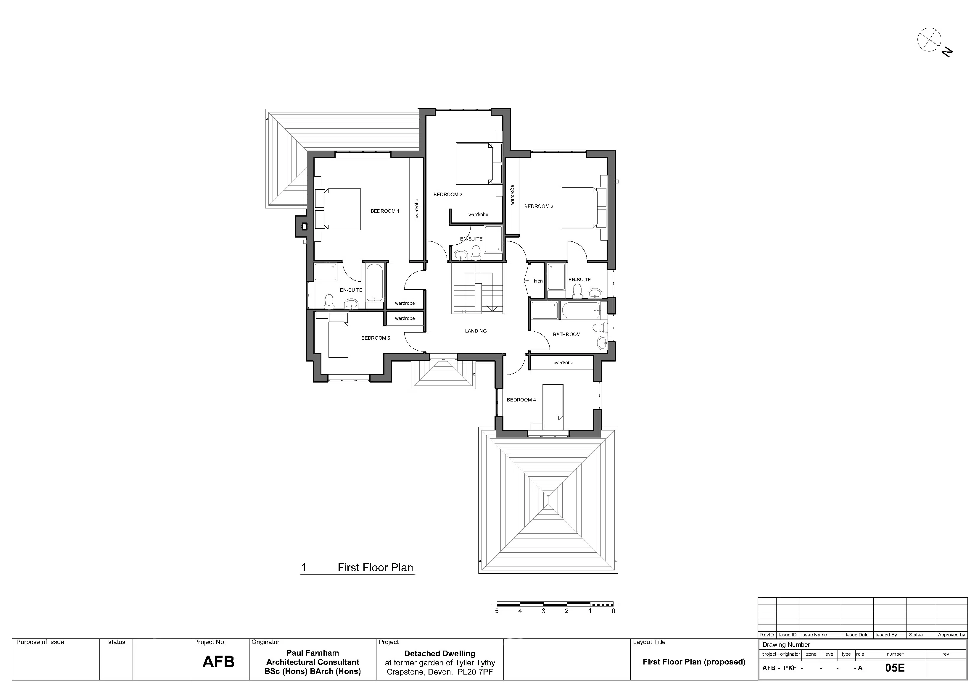
The proposed accommodation comprises lounge, dining room, kitchen, utility workshop and integral double garage on the ground floor. On the first floor there are 5 bedrooms, 3 of which are ensuite and there is a separate bathroom. The dwelling is located fairly centrally within the plot, with gardens on all sides. Access to the site is along an existing track which runs along the eastern edge of the adjoining property (now in separate ownership).
The plot extends to approximately 0.18 hectares (0.45 acres) according to the planning application and committee report. With a width of approximately 40m narrowing to 35m and a depth of approximately 45m (these measurements have been taken from the OS Block plan and interested parties should satisfy themselves as to the actual measurements on the plot).
View across the plot looking south west
View from rear boundary SW
CGI
CGI
Ground Floor Plan
First Floor Plan
OS Plan
Plot
Access from Road








Property reference
504Property details
| Price: | Offers in the region of £300,000 |
| Status: | Sold |
| Location: | Yelverton |
| Plots: | 1 |
| Surveyor: | Philip Taverner |
