Keinton Mandeville - Single Building Plot
This superb and increasingly rare development opportunity offers buyers the chance to acquire a substantial building plot and adjacent land on the edge of the popular village of Keinton Mandeville in Somerset. The plot itself extends to c. 0.42 ha / 1.04 acres (of which c. 0.21ha / 0.5 acres is designated as residential land, the remainder agricultural) and is currently occupied by a barn, shed and dilapidated stables. Detailed planning consent has been approved for the construction of a new two storey detached house and separate detached garage. The approved plans show a four bedroom detached house with a gross internal floor area extending to c. 191sqm (2056sqft). The detached garage is proposed to extend to a further 38.4sqm (413sqft). The plot faces onto Combe Lane and is positioned a short walk from the centre of the village.
The additional land, available by separate negotiation, comprises of a relatively level agricultural paddock immediately to the west of the plot and which extends to c. 3 acres. This would provide excellent amenity land to a future owner of the plot, potentially for equestrian use or alternatively may offer future development potential, subject to all requisite consents.
View across part of the site from western corner of the additional land facing north east
Proposed elevations
Proposed ground floor plan
Proposed first floor plan
View from the additional land toward the plot
View from additional land toward the plot
Site location plan
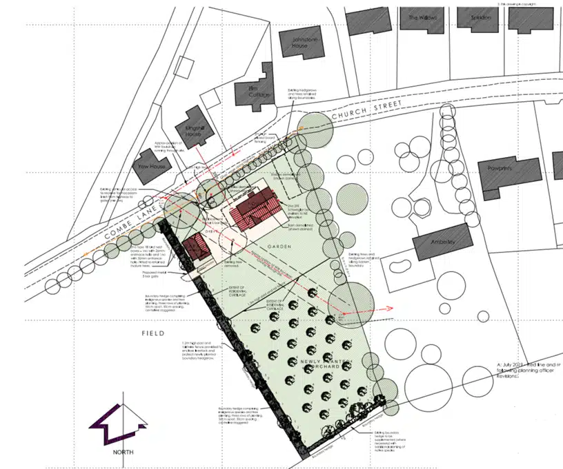
Proposed layout of the plot
View showing existing barn and stables








Property reference
408Property details
| Price: | £325,000 |
| Status: | Sold |
| Location: | Keinton Mandeville |
| Plots: | 1 |
| Surveyor: | Alexander Munday |
