Redruth - Site For 5 Flats, Wilkinson Gardens
This development site for 5 apartments comprises the former site office and compound for the development of Wilkinson Gardens which is situated to the south east of the town centre of Redruth and accessed from Sandy Lane (the A393 road) which runs north to south along the eastern side of Redruth. The site is located on the left as you drive in to Wilkinson Gardens from Sandy Lane, and a similar 5 apartments have been constructed on the right as you enter Wilkinson Gardens.
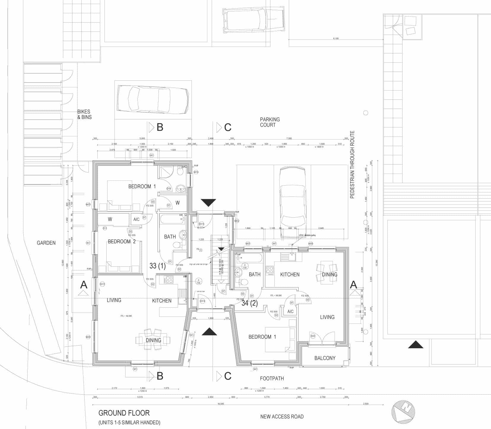
The approved proposed plans are for two, one-bedroom apartments (circa 460 sqft each) and three, two-bedroom apartments (circa 730 sqft each). The plots are labelled as Nos. 33 to 37 on the site layout plan.
AGENTS NOTE
1. The vendor has confirmed that all of the financial obligations of the S106 have been paid.
2. The freehold owners of the units would be required to become members of the site-wide management company.
PLANNING
Cornwall Council (Kerrier) granted planning permission (Ref. W2/PA07/00529) for the erection of one-hundred-and-one dwellings and associated infrastructure on land off Sandy Lane, Redruth in January 2008. The developer subsequently carried out this development and used this parcel of land which formed part of the overall proposed scheme for the 5 apartments, for their site office and compound.
View of site
Similar Apartment Block Constructed Opposite
Site Plan
Elevations
Ground Floor Plan




Property reference
253Property details
| Price: | Offers in the region of £100,000 |
| Status: | Sold |
| Location: | Redruth |
| Plots: | 5 |
| Surveyor: | Philip Taverner |
