South Tawton - Hayrish Farm Barn
KLP are delighted to be able to offer to the market this fantastic barn conversion opportunity with the benefit of prior approval planning permission. The barn is situated in a beautiful and peaceful location with views to the south towards Dartmoor, and yet a short distance to the A30 at Okehampton to the west or Whiddon Down to the east, with Exeter only approximately 20 miles to the east.
The barn is accessed via a concrete driveway from the highway to the east and is nestled under the trees on the hill to the west. To the north is the landscaped lake which is used and managed by Hayrish Farm. The lake is stocked with trout and carp. Access and use of the lake can be arranged by way of a yearly license with the farmer.
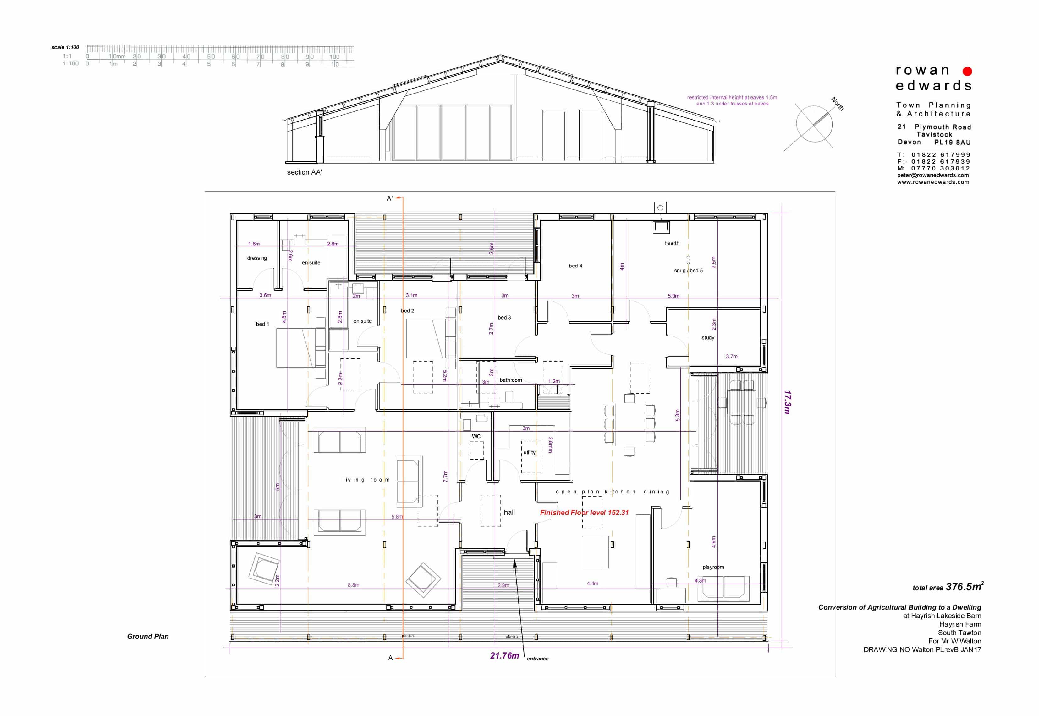
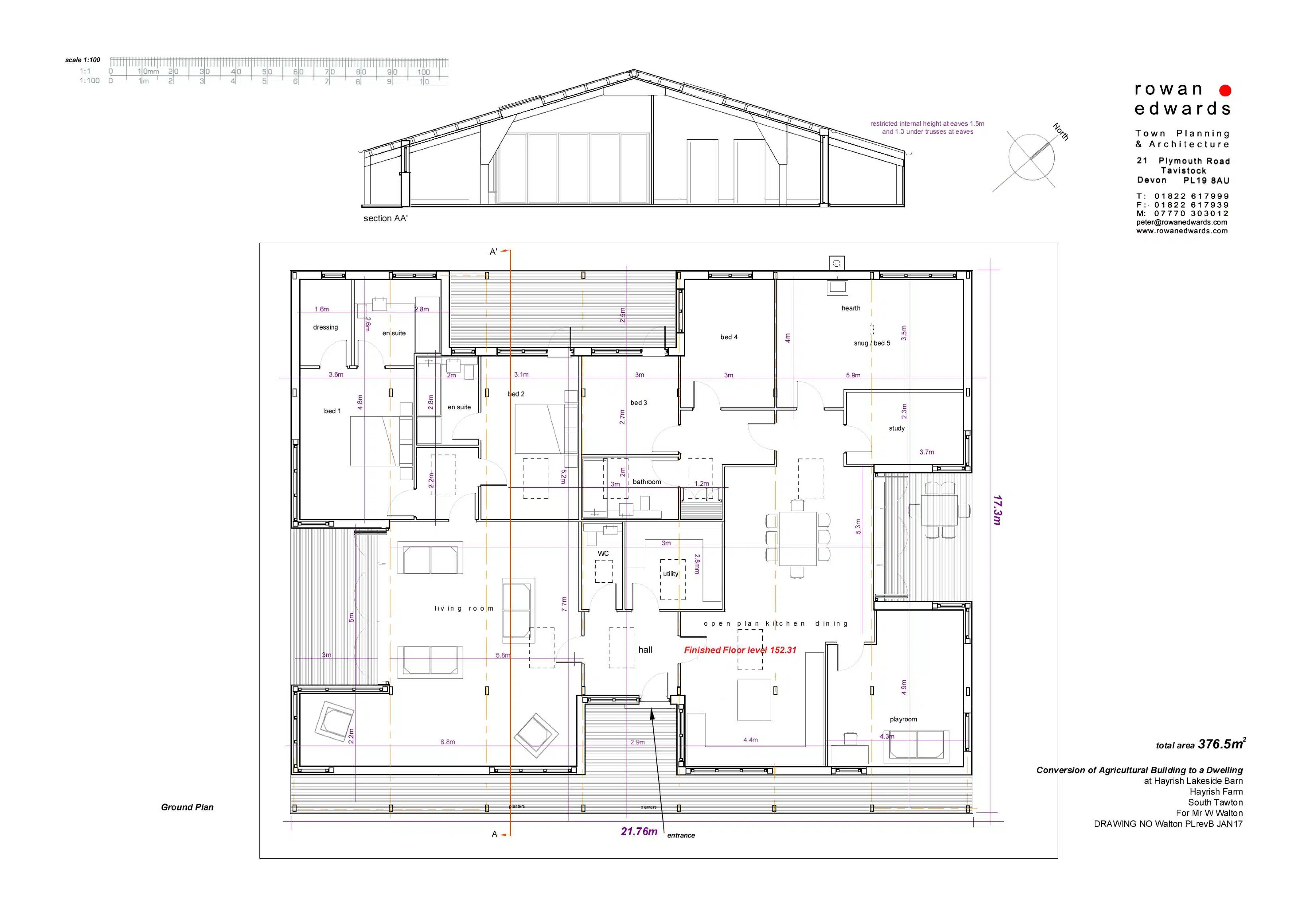
Development has already commenced on the conversion of this agricultural building to a superb single-storey residential dwelling and the works have been inspected and a warranty for these works will be available to a purchaser.
View of barn from SW
Aerial Image
Access
Driveway
Barn from NE
Klargester Drainage
Adjoining Pond
Elevations
Floor Plan








Property reference
371Property details
| Price: | Offers in the region of £300,000 |
| Status: | Sold |
| Location: | Okehampton |
| Plots: | 1 |
| Surveyor: | Philip Taverner |
