Torquay - Land At 42a Whidborne Avenue
KLP are delighted to offer to the market this superb single building plot, located in arguably one of Torbay’s premier residential areas. Whidborne Avenue is set on the brow of the headland to the east of the town centre and just above Thatcher Avenue and Ilsham Marine Drive. The site was formerly occupied by one dwelling but planning consent was attained for the demolition of this property and construction of two new detached dwellings. The adjoining plot (No. 42) has recently been built and completed by the vendor.
The plot being offered for sale (No. 42A) offers reserved matters planning approval (P/2020/0136) for a new detached dwelling house –proposed on the approved plans as a substantial (c. 308sqm / 3315sqft exc. garage) four bedroom, two and half storey house. The new property will offer a private vehicular entrance, double garage, parking and good sized rear gardens as well as superb sea views and coastal outlook from the proposed upper floor balcony and master bedroom.
Coastal views over part of the plot
View showing the cleared plot
Proposed Lower Ground Floor
Proposed Ground Floor
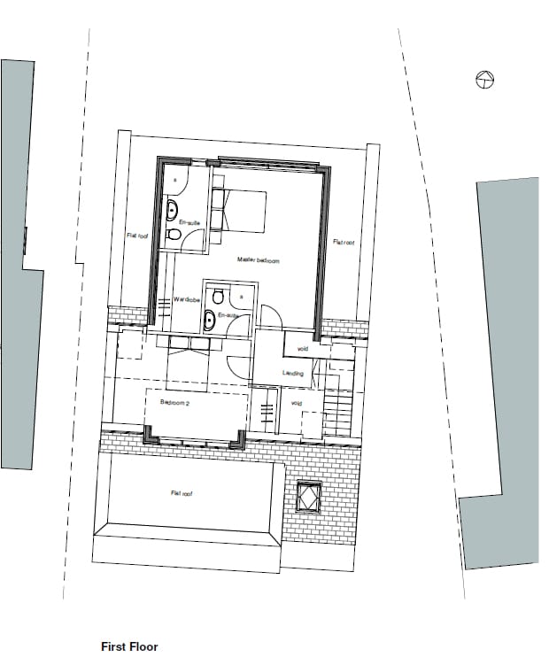
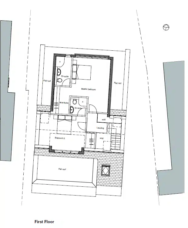
Proposed First Floor
No. 42 built on adjacent plot by vendor
No. 42 built on adjacent plot by vendor
No. 42 built on adjacent plot by vendor







Property reference
367Property details
| Price: | £425,000 |
| Status: | Sold |
| Location: | Torquay |
| Plots: | 1 |
| Surveyor: | Alexander Munday |
