Barnstaple, Plot At 58 Pilton Lawn
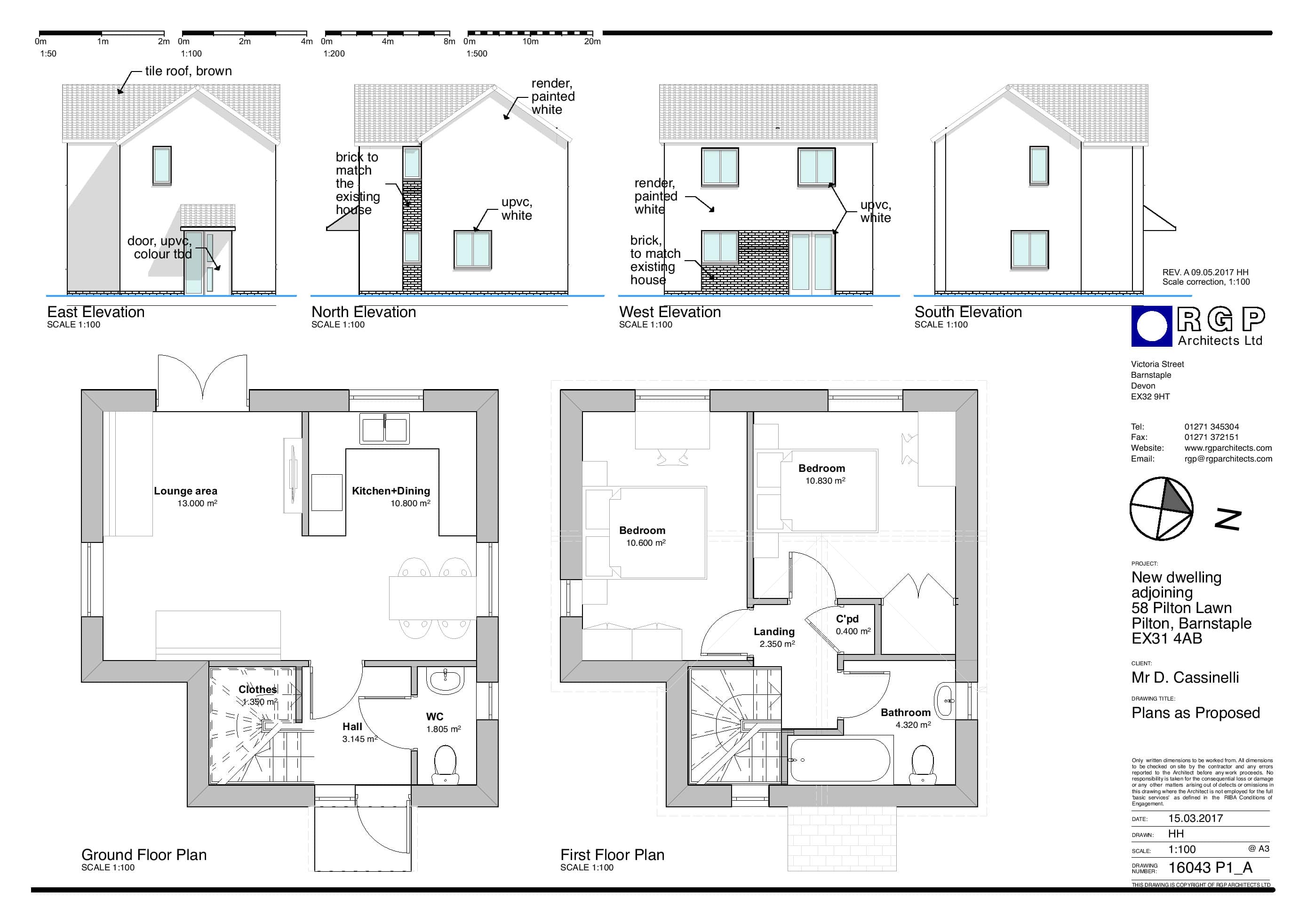
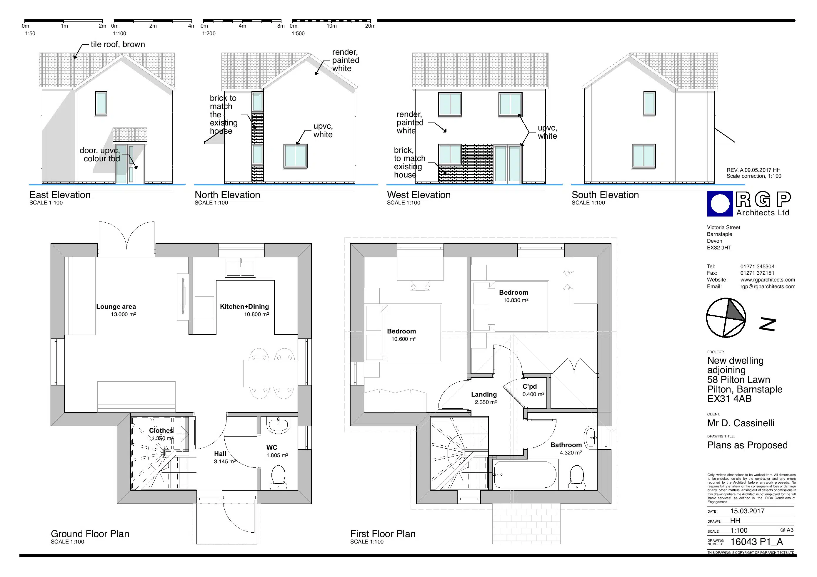
BARNSTAPLE - This is a great opportunity to acquire a building plot currently comprising garden to 58 Pilton Lawn, with full planning permission for a detached 2 bedroom dwelling. The plot has a very gentle fall north to south with a rendered block wall forming the east and south boundaries inside of which is established leylandii hedge which extends significantly into the plot. To the west is an existing bungalow and to the north is an existing 2 storey house. The plot which extends to c.0.014 hectares/0.035 acres is located on the corner of Pilton Lawn (from where it will derive vehicular access) and Raleigh Road. The proposed dwelling we estimate extends to c.63 sqm / 680 sqft with an open plan lounge, kitchen and dining area on the ground floor and two bedrooms and a bathroom on the first floor. The approved site plan shows two off road parking spaces and a modest garden area to the rear. The plot is located approximately half a mile from Barnstaple town centre and High Street.
View of plot from road
View of plot looking west
Site Plan
Location plan
Elevations
Floor plans 




Property reference
621Property details
| Price: | Offers in excess of £50,000 |
| Status: | Sold |
| Location: | Barnstaple |
| Plots: | 1 |
| Surveyor: | Darryl Hendley |
