Bishopsteignton - Plot Off Teign View Road
An opportunity to acquire a building plot in the Teign View Road area of the sought-after village of Bishopsteignton. The plot is long and narrow and benefits from full detailed planning permission for a detached dwelling and associated off-road parking.
The plot is situated on the north eastern fringe (higher end) of the village and the northern edge of the settlement boundary for the village. To the immediate north is beautiful open countryside and rural roads to Humber, Luton & Ideford as well as access to the Teignmouth Golf Course to the north east and the A380 to Exeter via the B3192, without the need to drive through the village and Teignmouth.
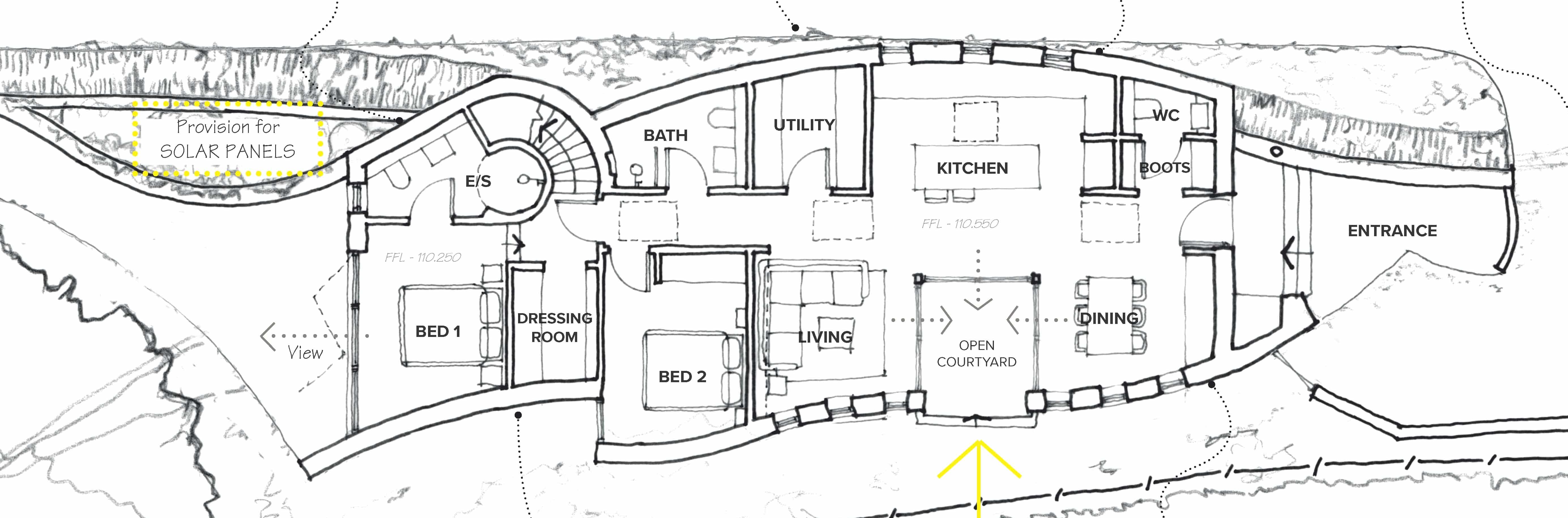
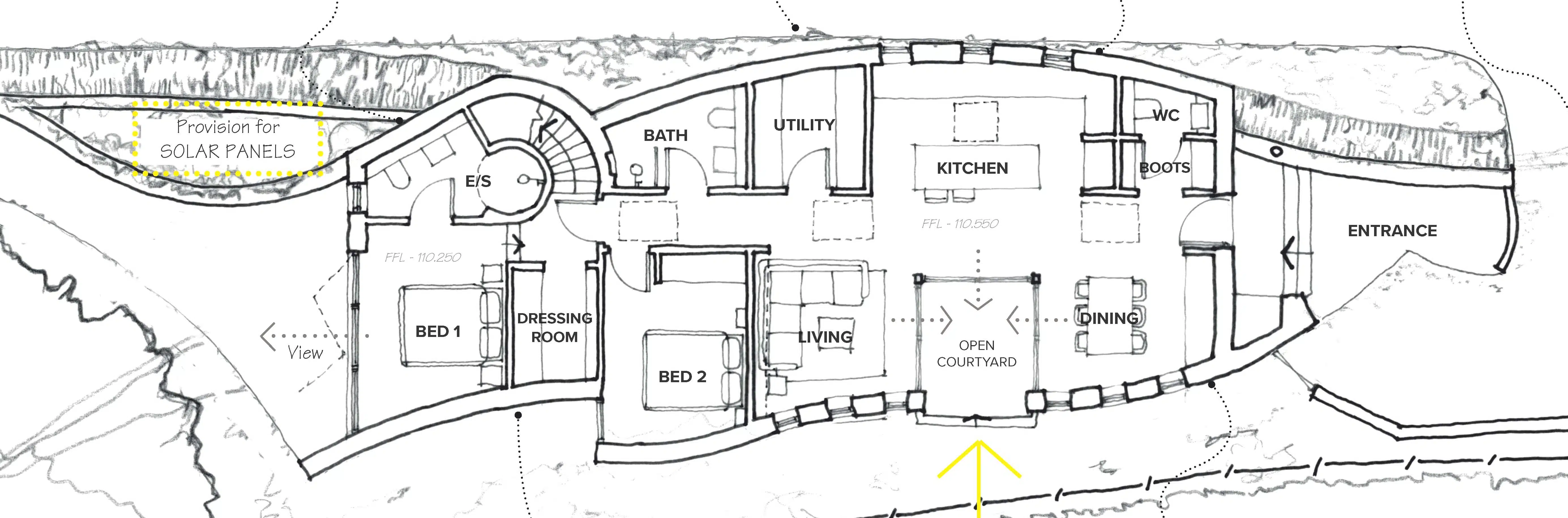
The proposed dwelling is contemporary in design, with a green roof system and high thermal insulation design, together with the majority of the windows facing south for solar gain. The internal floor area of the proposed dwelling is approximately 121.44sqm (1,307sqft), according to the CIL liability. The plot is relatively level and extends to approximately 0.05 hectares (0.12 acres).
Aerial view across the plot looking south east
Aerial view of Plot looking North
Aerial View of Plot looking SW
OS Location Plan
Site Plan
Ground Floor Plan
First Floor Plan
North and South Elevations
Google Aerial View (plot in Red)








Property reference
1009Property details
| Price: | Offers in excess of £115,000 |
| Status: | Sold |
| Location: | Bishopsteignton |
| Plots: | 1 |
| Surveyor: | Philip Taverner |
