Properties
BACK TO LISTINGS
View showing part of the plot from the access
View over part of the plot
View over part of the plot
View over part of the plot
Proposed Elevation
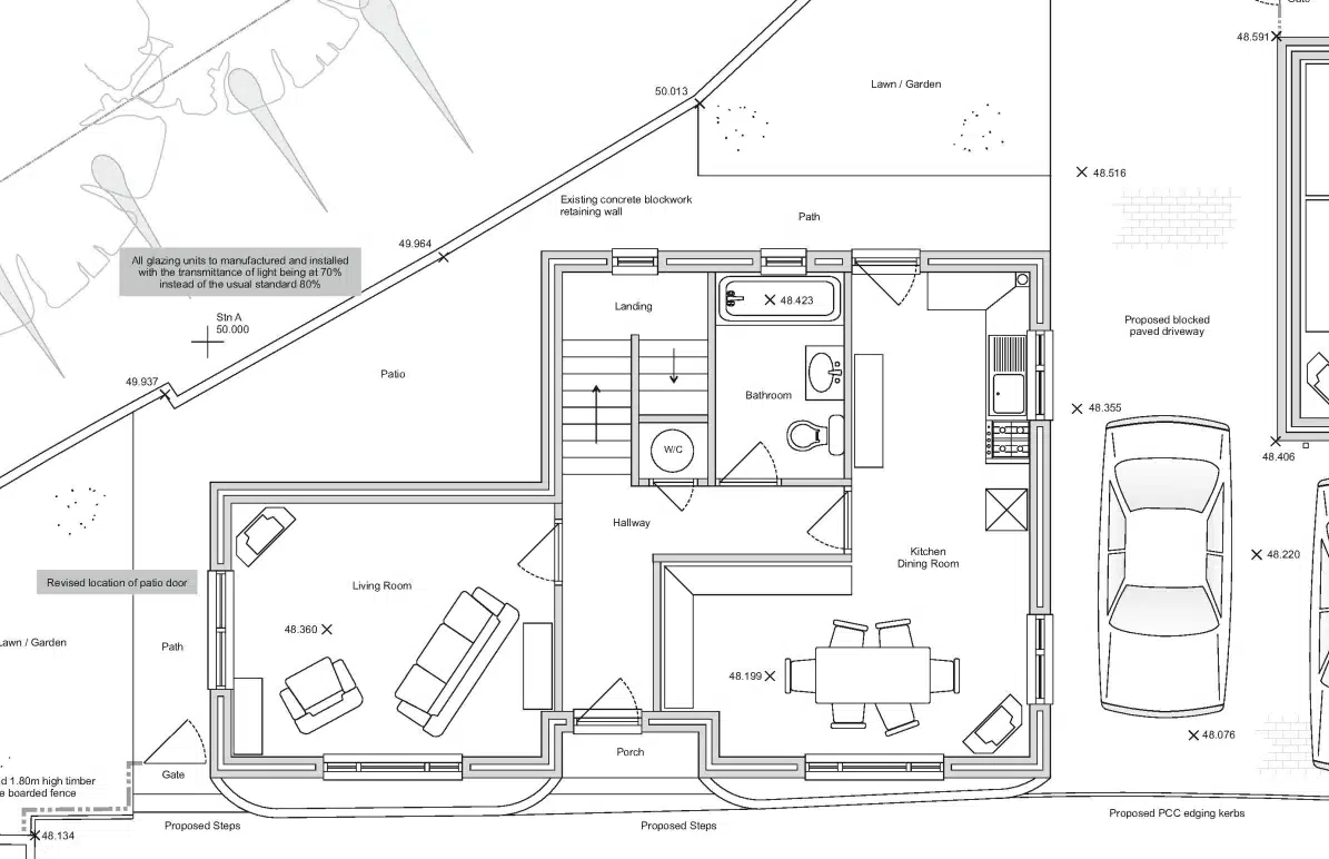
Proposed Ground Floor
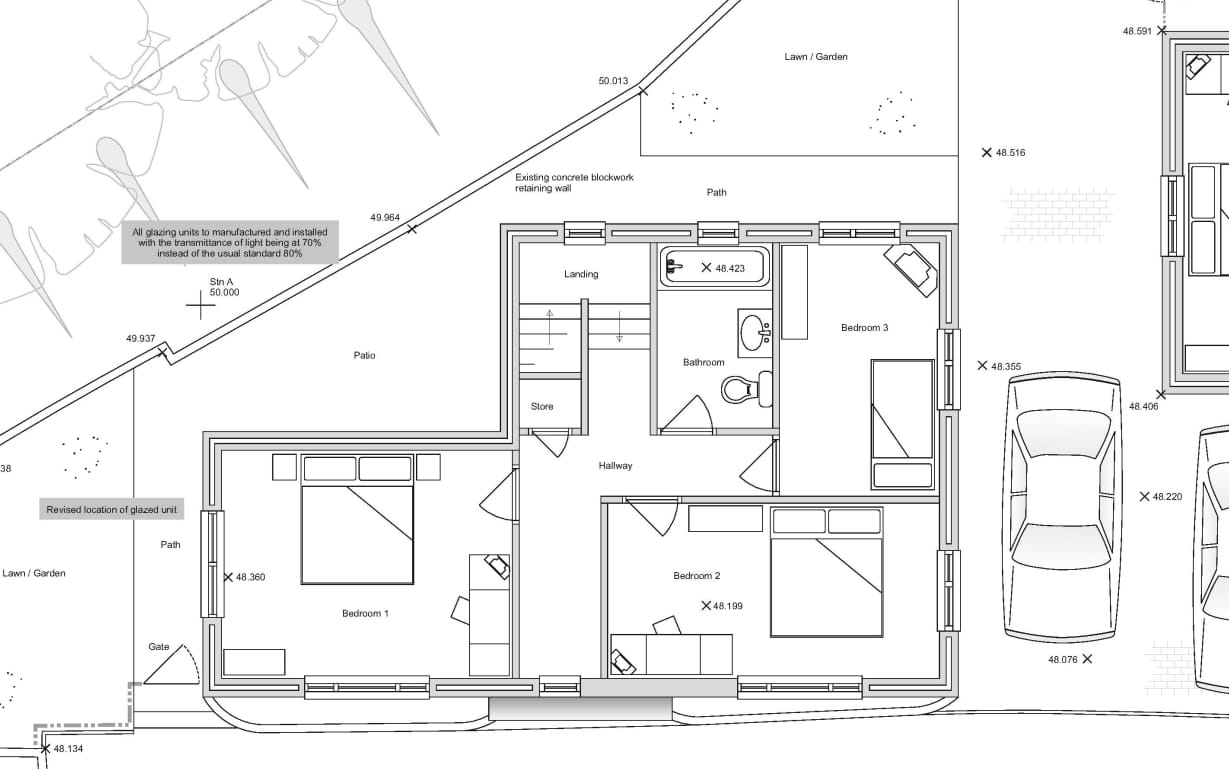
Proposed First Floor
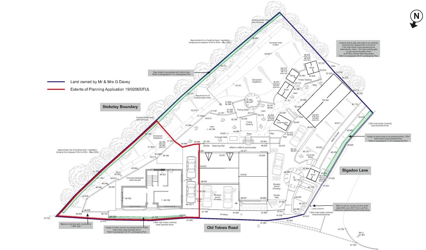
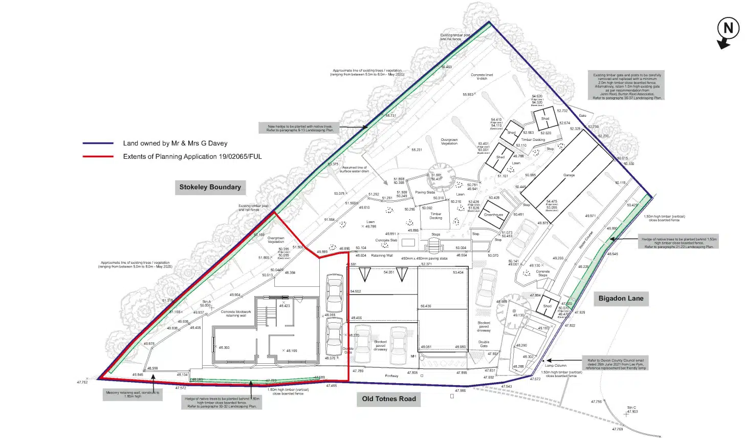
Proposed site plan![]()
![]()
![]()
![]()
Sold
Buckfastleigh - Plot At Old Totnes Road
This is a great opportunity to acquire a single building plot with detailed planning permission for a 3-bedroom detached house in the popular location of Buckfastleigh in Teignbridge. The proposed property is shown on the approved plans (ref. 19/02065/FUL) as a two storey detached house with a floorspace extending to c. 106.45sqm (1146sqft).
On the ground floor, the accommodation is shown to comprise of an entrance hallway, W.C., living room, open plan kitchen/dining room and a bathroom. Stairs lead to the first floor where three bedrooms are proposed along with a further bathroom.
Externally, the property is shown to benefit from two off road parking spaces and amenity/garden areas to both the side and rear.
View showing part of the plot from the access
View over part of the plot
View over part of the plot
View over part of the plot
Proposed Elevation
Proposed Ground Floor
Proposed First Floor
Proposed site plan




Property reference
737Property details
| Price: | Offers in the region of £110,000 |
| Status: | Sold |
| Location: | Buckfastleigh |
| Plots: | 1 |
| Surveyor: | Alexander Munday |
