Callington - 2 Plots West Of Little Green
ONE PLOT REMAINING - PLOT 1 AVAILABLE. An opportunity to acquire a development site for two large detached dwellings, or offers will be considered for the two individual building plots separately. The site is currently part of the curtilage of a property called Little Green which is a substantial house set within approx. 2.7 acres on the southern edge of Callington, and the approved site sits within approx. 0.7 acres.
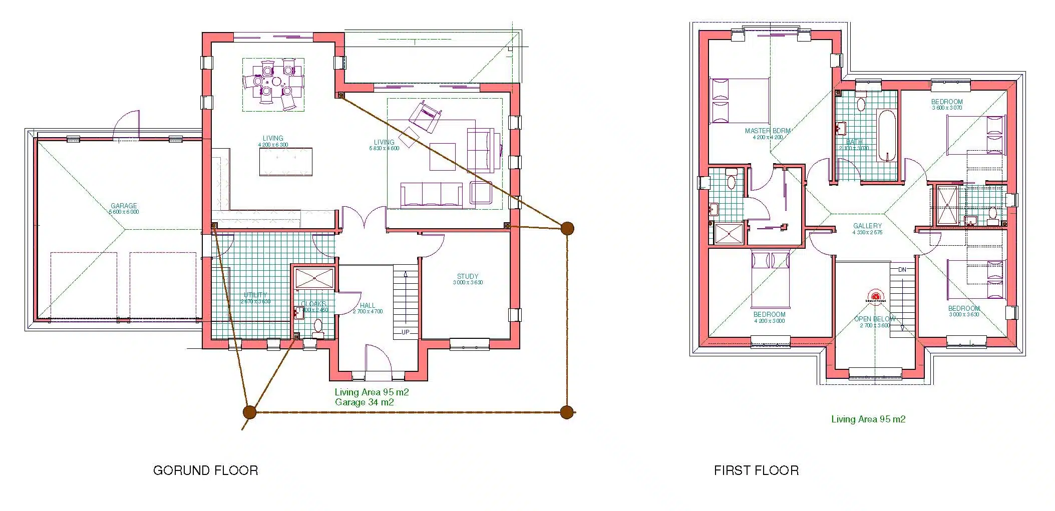
The site benefits from full detailed planning permission (Ref.PA21/07721) for two detached 4-bedroomed houses with double garages with a new access drive from the A390 to serve both dwellings. Each of the proposed dwellings are shown as generously sized 4 bedroomed properties with gross internal floor areas of approximately 190 sqm (2,045 sqft) each, both with attached double garages of approx. 34sqm (366sqft).
PLEASE NOTE: The seller, who owns Little Green, will be restricting the site to 2 dwellings and as per the planning permission (Ref.PA21/07721) approved drawings. However, they may consider an increase in dwelling numbers and alteration to the approved plans, subject to their approval and legal variation to the restrictive covenant in the sale contract.
Offers are invited in the region of £200,000 for each plot or offers will be considered for the freehold site.
Google Aerial View
Plot Layout
Plot 1 Floor Plans
CGI of Plot 1 House
Plot 2 Floor Plans
CGI of Plot 2 House
Site Layout Plan
View across site looking north
View to east








Property reference
842Property details
| Price: | Offers Invited. |
| Status: | Sold |
| Location: | Callington |
| Plots: | Estimated 1 |
| Surveyor: | Philip Taverner |
