Carbis Bay - Plot At Wheal Speed
This is a superb opportunity to acquire an individual building plot in the sought after location of Carbis Bay where detailed planning permission has been attained for a new contemporary house. The plot is positioned within walking distance of both the beach and St Ives and is also within walking distance of Carbis Bay train station, a large Tesco supermarket and nearby bus stop.
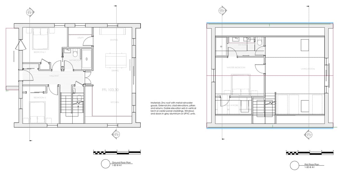
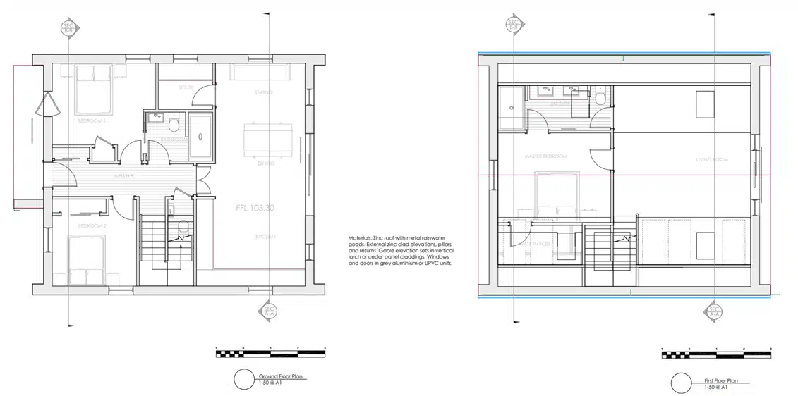
The approved new dwelling, which replaces an existing 1930’s detached bungalow (which currently occupies the plot but has been cleared, with floors removed, in preparation for demolition) takes the form of a three bedroom, two storey house with a floor area extending to c. 137.64sqm (1482sqft). The approved plans provide for two double bedrooms on the ground floor along with a bathroom, utility room, cloakroom and open plan kitchen/dining/living space. On the first floor, a master ensuite bedroom is proposed with walk in wardrobe along with a large open plan living room. From both floors, far reaching views across Carbis Bay will be on offer. Externally, lawned gardens are planned to the north, with two off road parking spaces to the west and a terraced area to the east. The plot is relatively level and extends to approximately 362sqm / 0.09 acres.
View from the site over Carbis Bay towards Godrevy Lighthouse
Existing dwelling for demolition
Map showing plot location circled
Proposed Sections and CGI
Proposed plot layout
Proposed Elevations
Proposed Floorplans






Property reference
946Property details
| Price: | Offers in the region of £295,000 |
| Status: | Sold |
| Location: | Carbis Bay |
| Plots: | 1 |
| Surveyor: | Alexander Munday |
