Churchstow, Plot At Butt Park Terrace
CHURCHSTOW - KLP are delighted to offer this prime greenfield residential development plot located in a picturesque setting in the sought after village of Churchstow, in the South Hams.
The plot is one element of planning permission 2955/21/FUL that comprises the reconfiguration of Churchstow Post Office and shop including private off road car parking. An application to vary condition 2 of the aforementioned planning permission which relates only to the layout of the parking, store and bin storage, was approved by South Hams District Council (SHDC) 11 November 2022. The plot is generally level and extends to approximately 0.04 ha/0.10 acres as approximately identified by a red outline on the site plan below, submitted under the variation application 3157/22/VAR.
The plot purchaser will also acquire the private access driveway and communal areas. These works (and those to the store, post office and cottage to the rear) will be undertaken and completed by the vendor. We understand that future maintenance of the private drive and communal areas will be the responsibility of the three properties who will use the private driveway and communal areas ie, the plot, post office/store and the cottage.
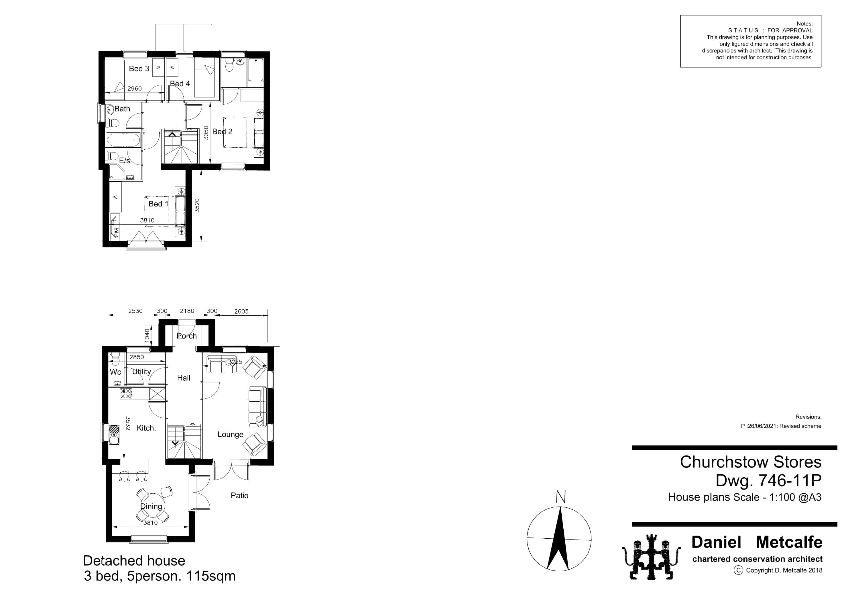
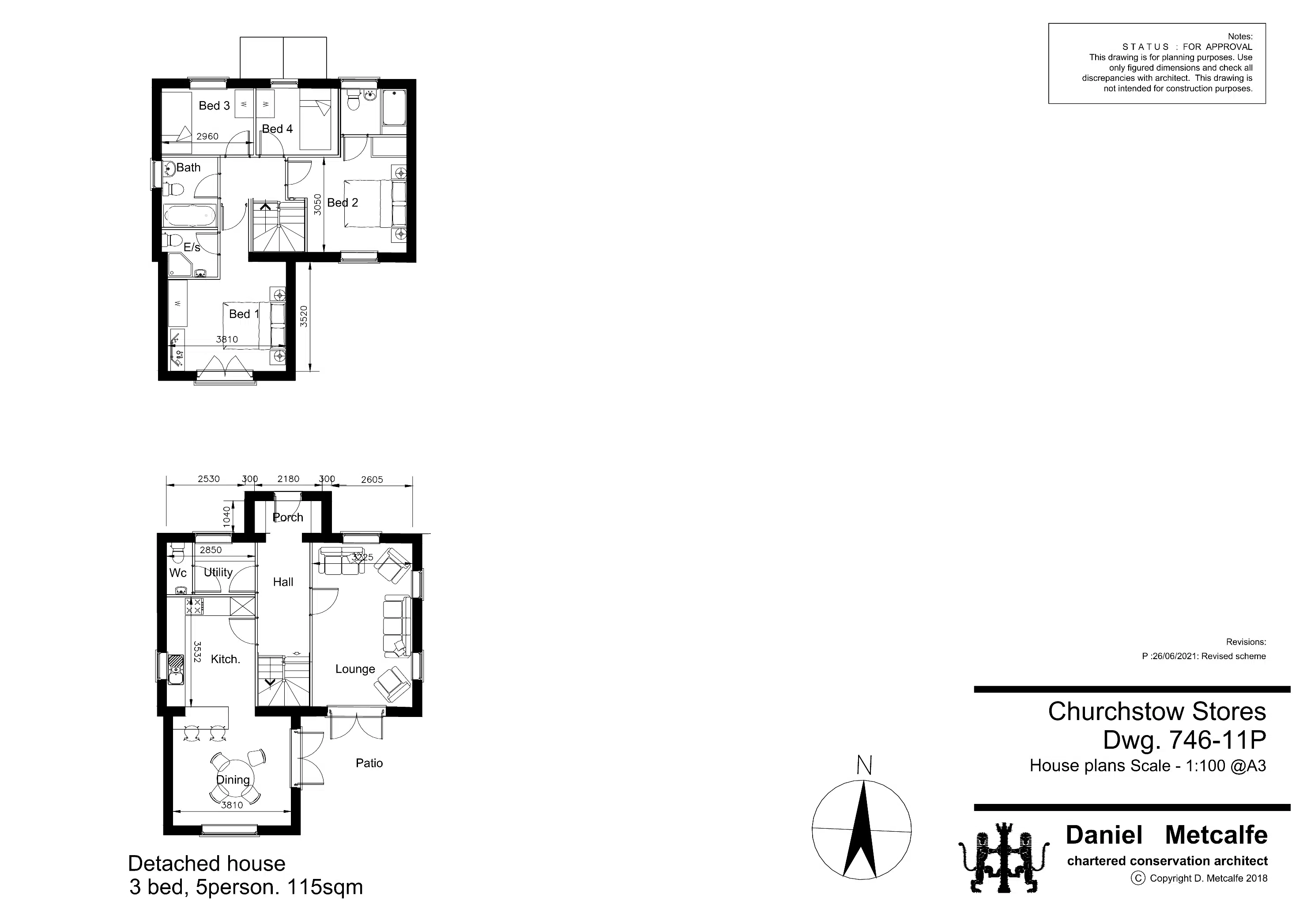
The approved design is for a 4 bedroom detached house extending to approx 115sqm/1238 sqft with two car parking spaces. Whilst the approved design is traditional, it may be subject to planning approval, that a more contemporary reverse level design might be preferred with family rooms on the first floor and perhaps a large balcony to the rear, which could enjoy the spectacular rural views towards Salcombe.
View from plot to the south
View from the plot to the south east
View across plot to north
View across plot to south
Site plan
Floor plans
Elevations
Illustrative Only - Alternative Design
South boundary rear garden








Property reference
821Property details
| Price: | £225,000 |
| Status: | Sold |
| Location: | Churchstow |
| Plots: | 1 |
| Surveyor: | Darryl Hendley |
