Exeter - 228 High Street - Site For 8 Apartments
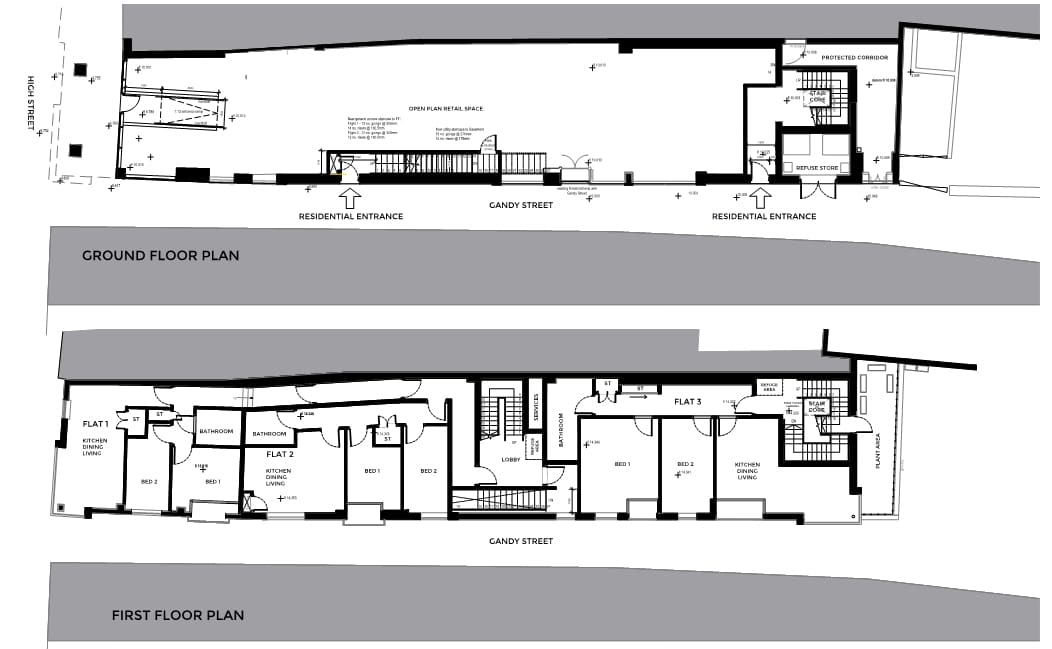
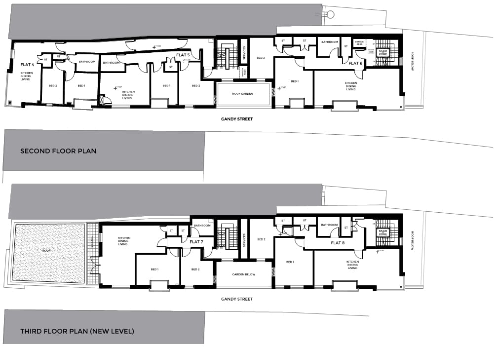
Situated in the heart of the city centre in Exeter, this development opportunity proposes the formation of eight new two bedroom apartments at 228 High Street. Presently, the existing structure comprises a three storey building with basement - part of the basement and the ground floor are currently leased by Costa Coffee (Note: the freehold of these parts of the building do not form part of the sale). The approved development proposes conversion of the existing first floor (previous office/commercial space) to form three apartments, and conversion of the existing second floor (previous office/commercial space) to form two further apartments. Three additional apartments are then proposed by new build development on the second floor (one apartment) and creation of an entirely new third floor (two apartments).
View of 228 High Street
Proposed Elevations
Existing Internal
Existing Internal
Existing Internal
Existing Internal
Proposed Ground and First Floor
Proposed Second and Third Floor







Property reference
764Property details
| Price: | Offers Invited. |
| Status: | Sold |
| Location: | Exeter |
| Plots: | 8 |
| Surveyor: | Alexander Munday |
