Exeter - Building Plot At Exwick Lane, Exwick
This single building plot which extends to c. 0.14 acres is situated on the north side of Exwick Lane close to its junction with Redhills. The plot is currently occupied by one existing residential dwelling and one static caravan, and benefits from a vehicular entrance at both the eastern and western end of the plot.
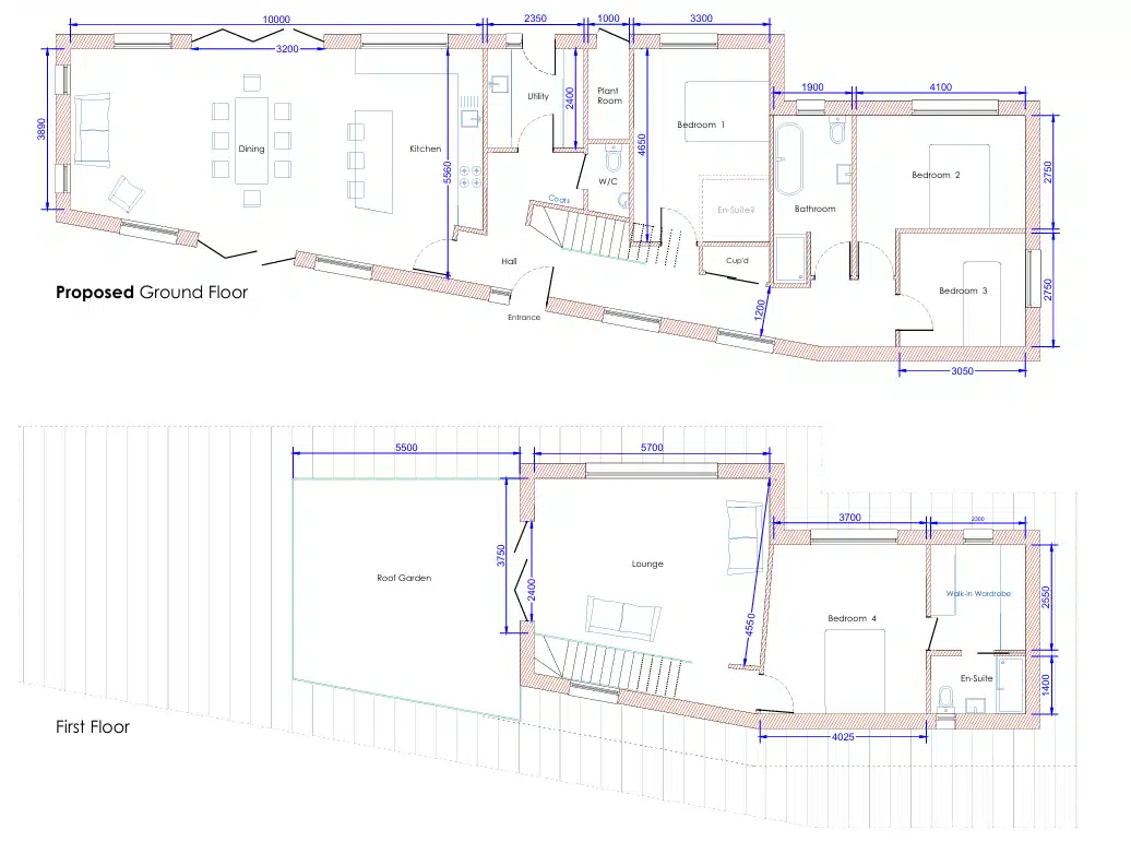
Detailed planning approval ref. 25/0843/FUL, has been granted for the removal of the existing property and caravan, and their replacement with a new two storey contemporary home. This new property is proposed to be constructed with a larger lower floor area than the upper area to allow for the creation of a first floor roof terrace. The layout looks to take advantage of the extensive countryside views to the north. The floor layout proposes a total of four bedrooms and a gross internal floor area (as per the CIL form) stated to be c. 181sqm (c. 1948sqft).
Aerial view of the plot - approximate boundary outlined
Views from the plot facing north
View over part of the plot showing existing dwellings
Proposed floorplans
Proposed elevations
Existing parking area
Part of the plot






Property reference
1098Property details
| Price: | £225,000 |
| Status: | For Sale |
| Location: | Exeter |
| Plots: | 1 |
| Surveyor: | Alexander Munday |
