Exeter - Single Building Plot Off Hoopern Lane
This is an increasingly rare opportunity to acquire a single building plot located in a sought after area of Exeter, within easy reach of both the City centre and the University. The plot benefits from commenced planning approval for a new detached house, designed by the well regarded architect Nick Gilbert-Scott. The proposed dwelling takes the form of a two storey house with a gross internal floor area extending to c. 122sqm / 1313 sqft. The property is shown with 3 bedrooms, but the possibility may exist, subject to all requisite consents, of further accommodation within the roof space. The design also incorporates off road parking accessed via folding doors from Hoopern Lane. Works were commenced by the current owner in 2018 and included the demolition of the existing garages, removal of a section of garden and laying part of the required raft foundation. As such Building Regulation Approval is in place (paid for in full) and a structural engineer has been engaged to provide drawings / calculations and methodology for the first phase of construction. In addition, initial SAP calculations have been made and approved.
A large workshop/studio (c. 25sqm) is also included in the sale and could remain on site during the build as a store/site office.
Photo of the plot - taken before demolition of garages and excavation
Artists impression of proposed dwelling
Completed excavation works
Section through proposed property
Part of the plot
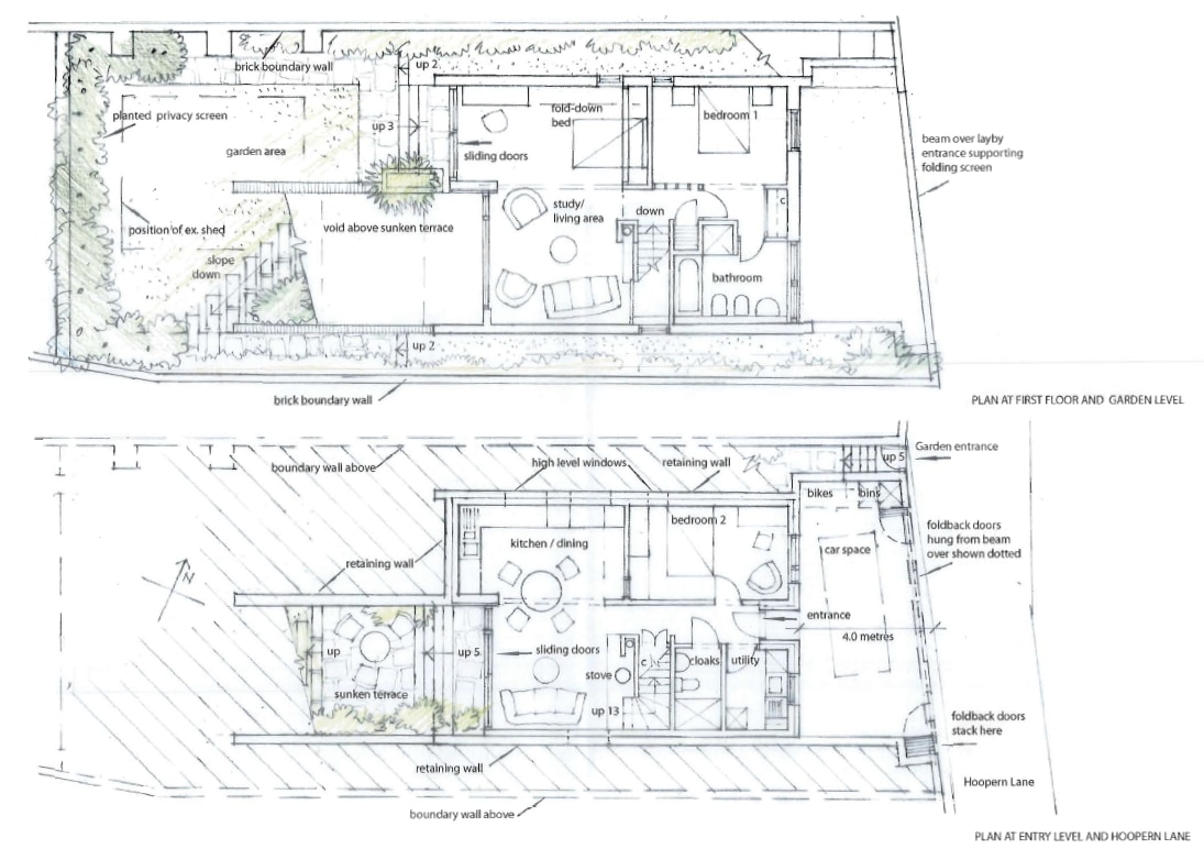
Proposed floorplans
Proposed elevations






Property reference
570Property details
| Price: | Offers Invited. |
| Status: | Sold |
| Location: | Exeter |
| Plots: | 1 |
| Surveyor: | Alexander Munday |
