Higher Winsham - Barn For Conversion
BEST & FINAL OFFERS BY MIDDAY ON FRIDAY 15th OCTOBER 2021. A small courtyard complex of former farm stone and cob barns with the benefit of Part Q planning to convert them into a lovely rural dwelling. Part of the conversion works have already been undertaken, but due to a change in personal circumstances, the vendor has reluctantly decided to sell this development opportunity.
Initial works to the main block of the barns, which will house the living accommodation and master bedroom suite, have been undertaken to repair the roof and walls and pour the concrete floors ready for the underfloor heating to be installed. The stud walls to divide the master bedroom from the living accommodation and the ensuite have also been constructed. The other wing of the building which runs to the west along the edge of the road and encloses the courtyard, is proposed to house the pantry, bathroom and 2 further bedrooms. The old asbestos roof on this section was removed ready for the conversion works just prior to the first Covid National lockdown, and due to the vendor’s change in circumstances, no further work on this section has progressed to date.
The double garage and office/workshop building have also had works done to make them secure and electricity has been connected to this building.
Please note that the cladding for the office & garage building, 8-zone underfloor heating equipment (not boiler) and the windows for the building may be available as part of the sale.
View of the barns from access area
Garage & Office block
Living accommodation area
Living area
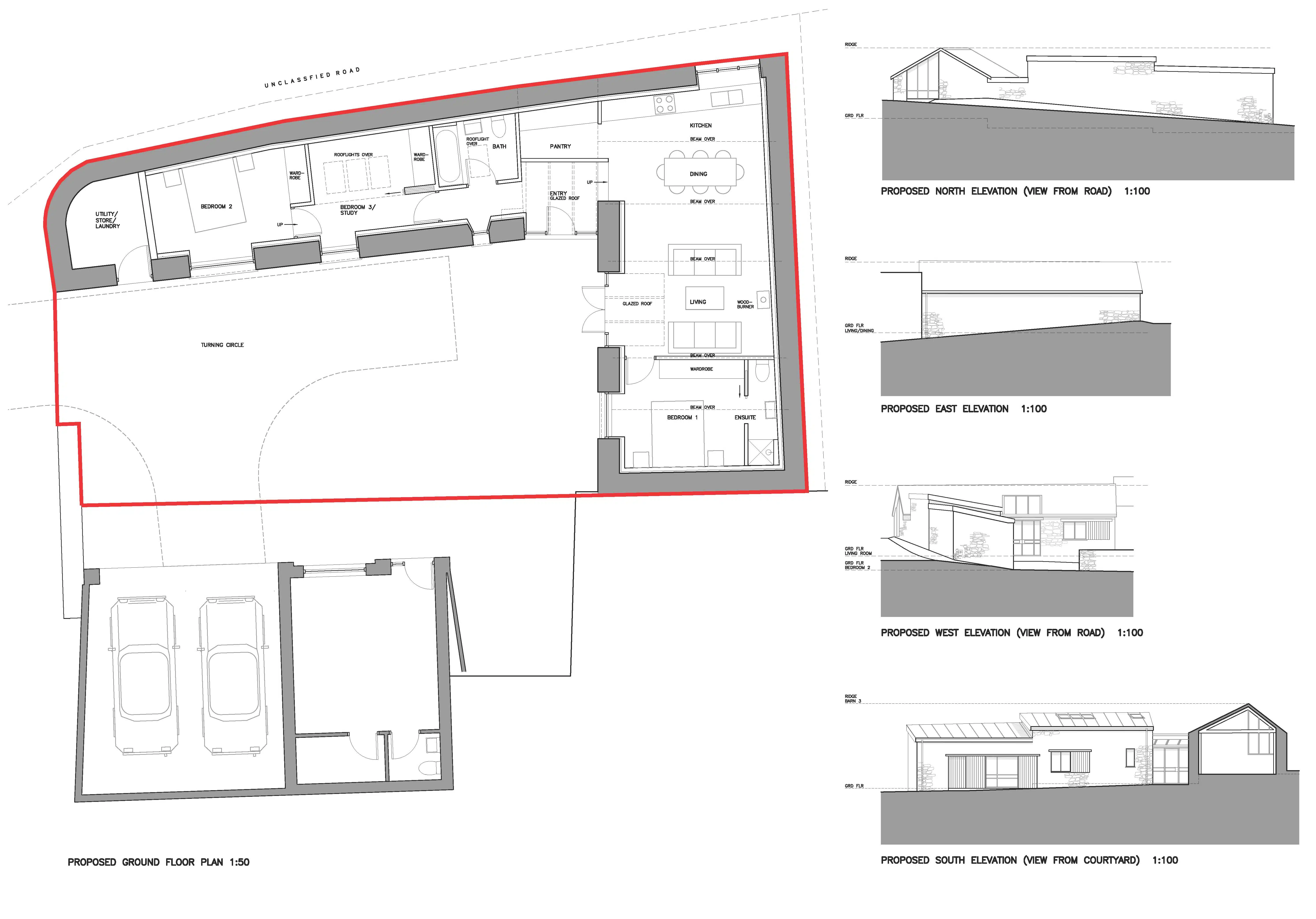
Approved Plans
Master bedroom suite
Courtyard looking north
Front of main block
Google Aerial Image








Property reference
711Property details
| Price: | Offers in the region of £230,000 |
| Status: | Sold |
| Location: | Braunton |
| Plots: | 1 |
| Surveyor: | Philip Taverner |
