Kingsteignton - Oakford House, Broadway Road
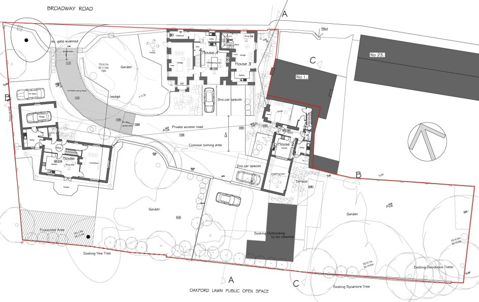
REDEVELOPMENT SITE FOR 4 HOUSES. Kitchener Land and Planning are delighted to offer this property for sale with the benefit of detailed planning permission (Ref.14/03505/FUL) to create 4 dwellings. The proposed plans show one new detached four bedroom dwelling, conversion and extension of the former dental laboratory buildings to create another good sized dwelling with a private walled garden to the rear and then alterations to the existing 5 bedroom dwelling to create a 4 bedroom and a 1 bedroom semi-detached houses. However, some interested parties may prefer to simply refurbish the main house to create a fabulous detached residence and hence create a gated enclave of 3 superb, good sized dwellings within the environs of this historic property which extends to approximately half an acre. The property is situated centrally within close, relatively level proximity of the local amenities and schools.
View of Oakford House & old Dental Laboratory









Property reference
49Property details
| Price: | Offers in the region of £575,000 |
| Status: | Sold |
| Location: | Kingsteignton |
| Plots: | Estimated 4 |
| Surveyor: | Philip Taverner |
