Properties
BACK TO LISTINGS
Views over part of the plot
Location Plan
Proposed lower ground floor and ground floor plan
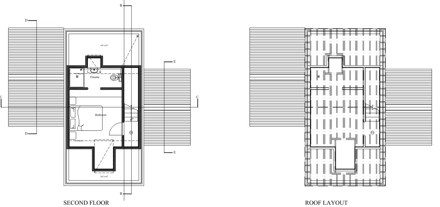
Proposed first floor and roof plan
Proposed elevations
Proposed Elevations ![]()
![]()
![]()
![]()
![]()
Sale Agreed
Lostwithiel - Plot At The Brambles
Comprising a section of vacant land in an attractive cul-de-sac setting in Lostwithiel, this single building plot benefits from commenced detailed planning approval and building regulation approval for the construction of a new four bedroom detached house and garage. The proposed property is shown with accommodation over three floors and with a G.I.A of c. 125sqm (1345sqft), excluding the integral garage. The new dwelling will benefit from a south-east facing rear garden with delightful countryside views across the local area.
Views over part of the plot
Location Plan
Proposed lower ground floor and ground floor plan
Proposed first floor and roof plan
Proposed elevations
Proposed Elevations 





Property reference
808Property details
| Price: | £99,950 |
| Status: | Sale Agreed |
| Location: | Lostwithiel |
| Plots: | 1 |
| Surveyor: | Alexander Munday |
