Newquay - Porth Cove Hotel, Watergate Road
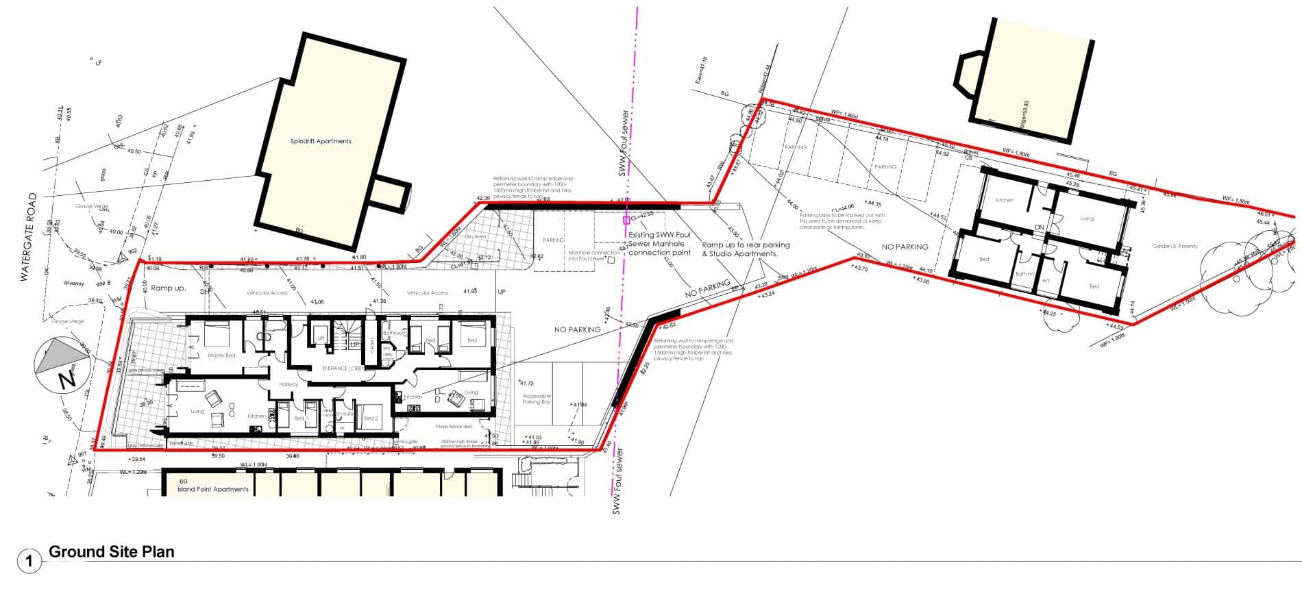
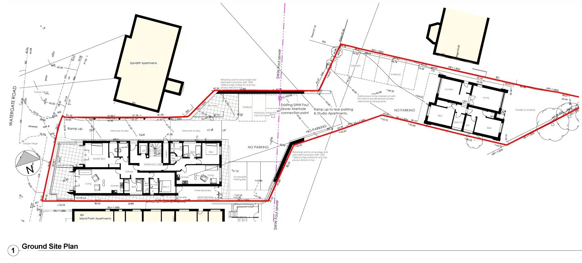
This former hotel now benefits from detailed planning permission for demolition and the erection of a block of 9 new apartments plus a single-storey detached dwelling in the rear car park. The property is situated on the Watergate Road just a short distance from Porth Beach and within close proximity to many other fantastic beaches with Watergate Bay just a short distance to the north either along the B3276 road or the South West Coast footpath which runs along the cliff-top on the other side of the road from the property.
The approved plans are for 8 x two bedroom apartments and a three bedroom apartment in the main new building and a two bedroom detached single-storey dwelling with a garden, to the rear of the car park. The views from the front of the property, even at ground level, are fantastic and far reaching along the coastline and beaches of Newquay to the west.
There is no associated affordable housing requirement or contribution or S106 contributions required as part of the planning permission.
Cornwall Council granted detailed planning permission (Ref.PA16/08993) for demolition of existing hotel and replacement with development of 9 residential apartments with a single storey dwelling and associated hard and soft landscaping at Porth Cove Hotel, Watergate Road, Newquay, TR7 3LX on 15th December 2016.
View from second floor looking west
Existing hotel & access from Watergate Road
Rear Car Park
View from Ground Floor
Proposed Site Plan
Proposed
Proposed
Ground Floor Plan
Building in rear car park








Property reference
189Property details
| Price: | £700,000 |
| Status: | Sold |
| Location: | Newquay |
| Plots: | 10 |
| Surveyor: | Philip Taverner |
