Properties
BACK TO LISTINGS
Proposed Side Elevation
View from the Plot looking SW
Location Plan
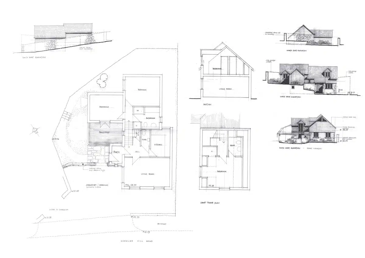
Proposed Plans
Lower Ground Floor
Proposed Road Elevation
View of the plot from Knowles Hill Rd![]()
![]()
![]()
![]()
![]()
![]()
Sold
Newton Abbot - Plot Adjacent To Torvesco House
An opportunity to acquire a building plot in the Knowles Hill area of Newton Abbot with the benefit of detailed planning permission (Ref.19/00254/FUL) for a detached four bedroomed dwelling. The gross internal floor area of the proposed dwelling is approximately 121m2 (1,302 sqft).
Due to its elevated position off Knowles Hill Road, the upper floors of the proposed dwelling should benefit from far-reaching views to the south west.
The plot extends to approximately 0.02 hectares (0.05 acres) and is at present occupied by some lock-up garages.
Proposed Side Elevation
View from the Plot looking SW
Location Plan
Proposed Plans
Lower Ground Floor
Proposed Road Elevation
View of the plot from Knowles Hill Rd






Property reference
475Property details
| Price: | Offers in the region of £125,000 |
| Status: | Sold |
| Location: | Newton Abbot |
| Plots: | 1 |
| Surveyor: | Philip Taverner |
