Paignton - Development Site At Totnes Road
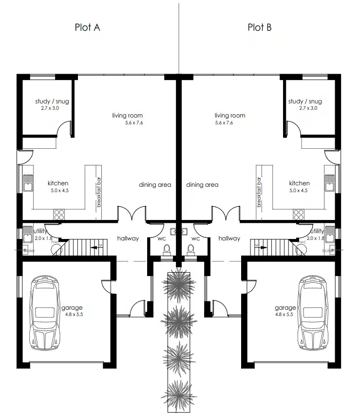
This superb development opportunity consists of a site extending to c. 0.17 ha / 0.42 acres on the western edge of Paignton. Detailed planning approval was given on 19th February 2019 for the construction of a pair of semi-detached dwellings which are shown from the approved plans as having accommodation to include an entrance hallway, W.C., utility room, double garage, open plan living room/dining room/kitchen area and study/snug on the ground floor. The proposed first floor accommodation includes four double bedrooms (two with en-suite shower rooms) and a family bathroom. The proposed floor area of each dwelling is shown to extend to c. 216.45sqm (2330sqft) including the integral garage. The new dwellings are proposed to be accessed via an existing vehicular entrance onto Totnes Road and will offer parking to the front, along with good sized, south facing rear garden areas.
It is the vendors opinion that the site may be equally suitable, subject to all requisite consents, for an alternative development scheme, comprising perhaps either a substantial single dwelling house or alternatively two detached dwellings.
View over the plot facing south west
View over the plot facing south east
View from rear boundary facing north
Existing entrance onto Totnes Road
Proposed elevations
Proposed ground floor
Proposed first floor






Property reference
709Property details
| Price: | £395,000 |
| Status: | Sold |
| Location: | Paignton |
| Plots: | 2 |
| Surveyor: | Alexander Munday |
