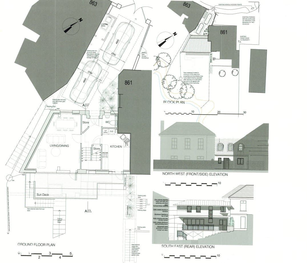
Plymouth - Plot Adj 861 Wolseley Road, Saltash Passage
FOR SALE BY AUCTION WITH OUR JOINT SOLE AGENTS, CLIVE EMSON AUCTIONEERS, on 6th MAY 2016 (unless sold prior). This is a fantastic opportunity to acquire a building plot with detailed planning permission (Ref.15/02120/FUL) for the proposed conversion and extension of the existing garage building into a two storey, three bedroomed, pitched roof dwelling. The gross internal floor area of the proposed dwelling is approximately 88m2 (950 sqft), with a balcony on the rea of the property to take advantages of the estuary views, and there is parking provision for 2 cars on the front driveway. The rear garden slopes down away from the proposed dwelling to the edge of the estuary rock-face.
The plot is located on the south western promontory of Wolseley Road between Numbers 861 and 863 which backs directly on to the Tamar Estuary at Kiln Bay and Kinterbury Creek and benefits from views to the south west across the Tamar towards the mouth of the Lynher River.
Aerial Image
Aerial
Location Plan
GF, Elevations & Block Plans
FF & Elevation Plans
Aerial Location Image








Property reference
126Property details
| Price: | Offers in excess of £140,000 |
| Status: | Sold |
| Location: | Plymouth |
| Plots: | 1 |
| Surveyor: | Philip Taverner |
