Properties
BACK TO LISTINGS
View over part of the plot towards Salcombe Hill and the sea
Sea Views
Countryside Views
Views over part of the plot
Views over part of the plot
Proposed Site Plan
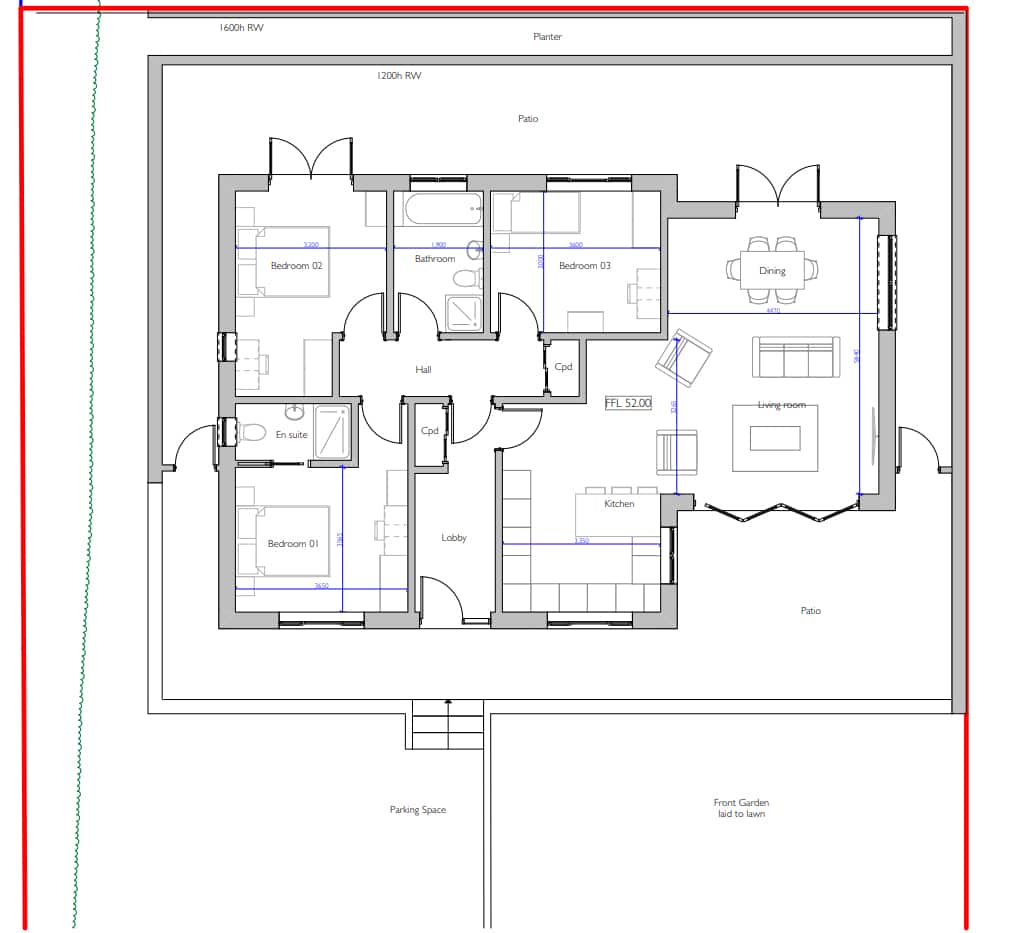
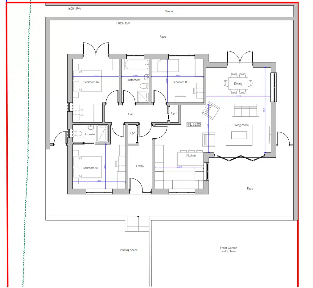
Proposed Floorplan![]()
![]()
![]()
![]()
![]()
![]()
Sold
Sidford - Building Plot Off Coreway
This single building plot, located in the cul-de-sac of Coreway, is set in an elevated position overlooking the town of Sidmouth and the East Devon coastline. The plot benefits from a grant of reserved matters planning approval (ref. 22/1252/RES) for the construction of a new detached bungalow. The proposed property is shown on the approved plans with a gross internal floor area of c. 107sqm (1152sqft) and with accommodation to include an entrance lobby, open plan kitchen/living room/dining area, three bedrooms (master en-suite) and a further bathroom. Outside, an off road parking/turning area is proposed along with a garden area to serve the new property. The plot extends to c. 0.16 acres / 0.06 ha.
View over part of the plot towards Salcombe Hill and the sea
Sea Views
Countryside Views
Views over part of the plot
Views over part of the plot
Proposed Site Plan
Proposed Floorplan






Property reference
823Property details
| Price: | Offers in excess of £250,000 |
| Status: | Sold |
| Location: | Sidford |
| Plots: | 1 |
| Surveyor: | Alexander Munday |
