St Cleer - The Stag Inn, Fore Street
A substantial historic public house with spacious owner’s accommodation over four floors, garden and car parking area, and now with the benefit of planning permission (Ref.PA17/07622) for change of use and conversion into 2 dwellings. To the rear of the property from both the garden and large first floor balcony, there are far-reaching rural views to the north, over the village and towards Bodmin Moor.
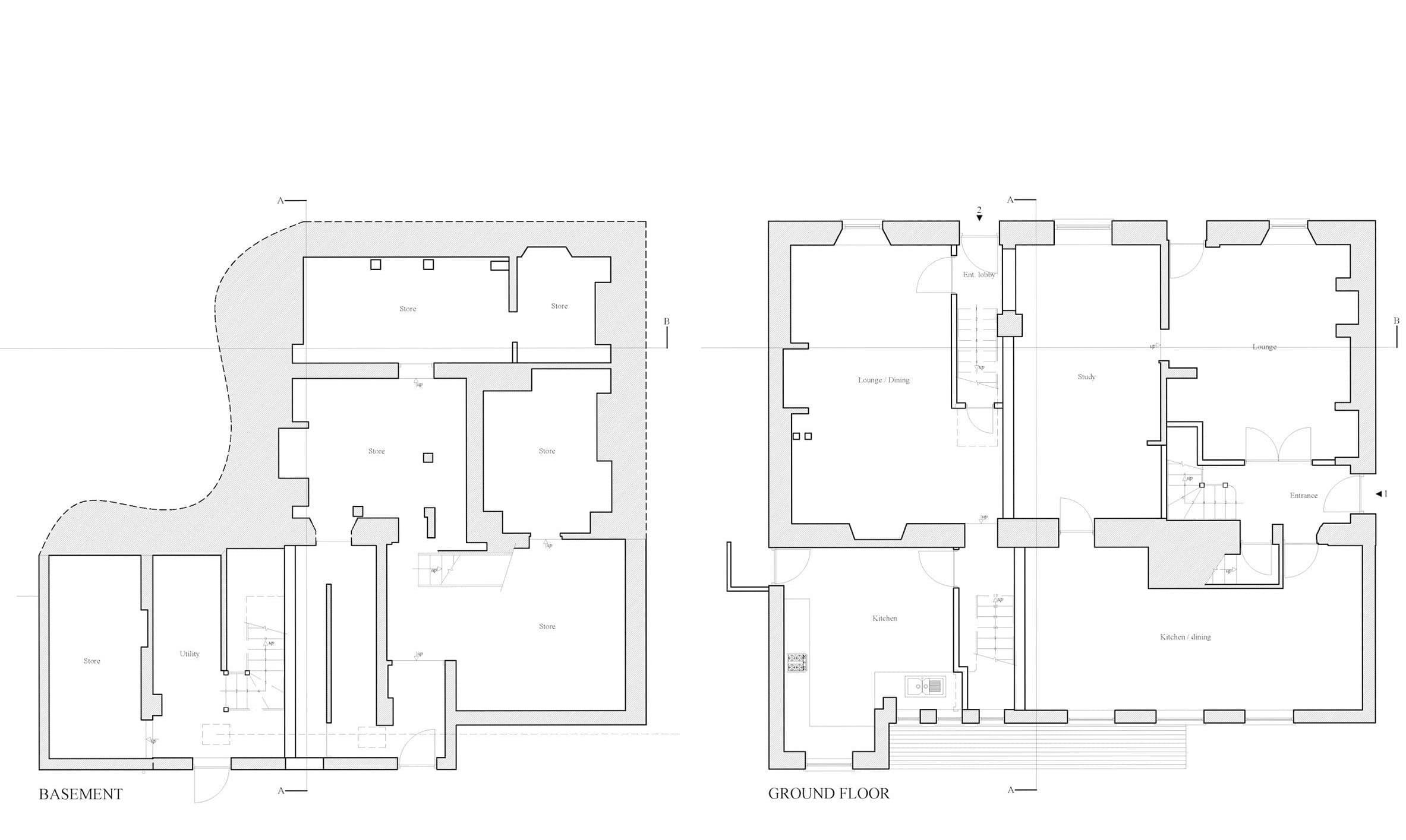
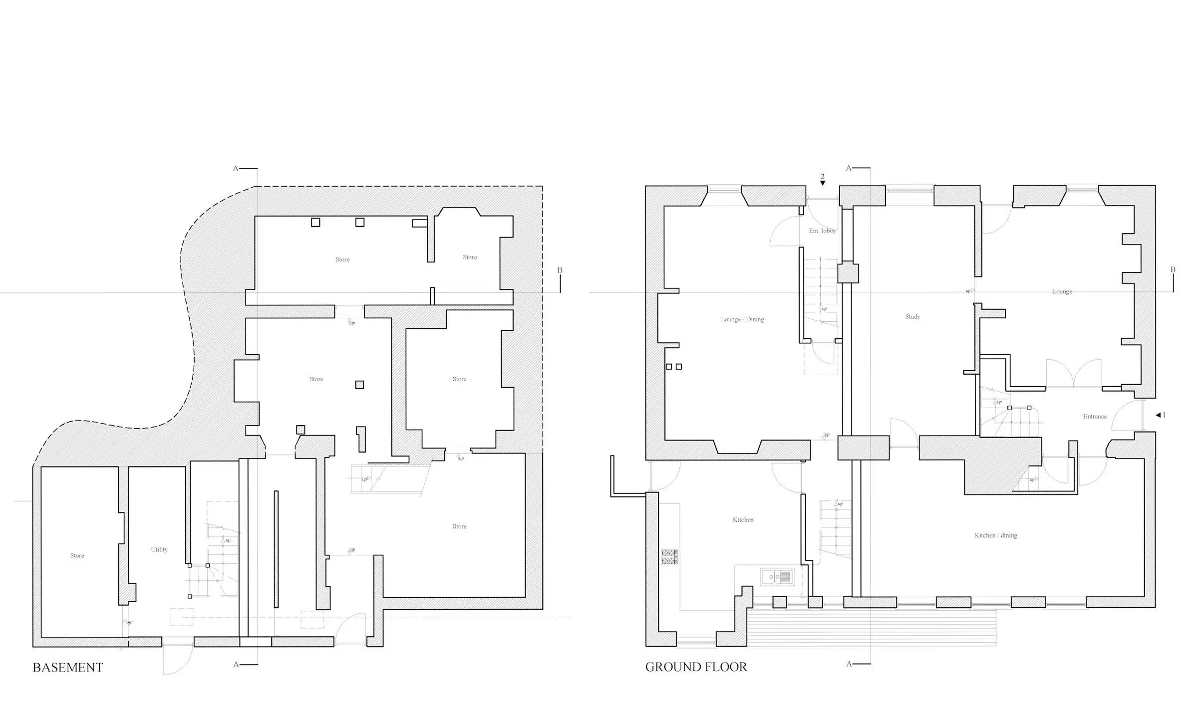
The conversion is well designed by the architects and appears to be relatively straightforward, with one of the proposed dwellings being a 4 bedroomed house over 4-storeys which includes the large basement area and the other will be a 2 bedroomed house over 3-storeys; both with off-road parking, gardens and each with part of the existing balcony across the rear of the property at first floor level.
The property extends to approximately 0.074 hectares (0.18 acres), although there is a right of way across part of the car park area to a field to the rear and a neighbours garage.
Front of property
View to rear
Rear of Property
FF Lounge
Balcony
Bar area
Proposed lower floor plans
Proposed Upper Floor Plans
Site plan








Property reference
597Property details
| Price: | Offers in excess of £200,000 |
| Status: | Sold |
| Location: | Liskeard |
| Plots: | 2 |
| Surveyor: | Philip Taverner |
