Stoke Fleming - Site Off School Road
A great opportunity to acquire this development site with the benefit of commenced planning permission for development of 19 dwellings in this highly sought-after area. The site is located off School Road and is within easy reach of all the village amenities.
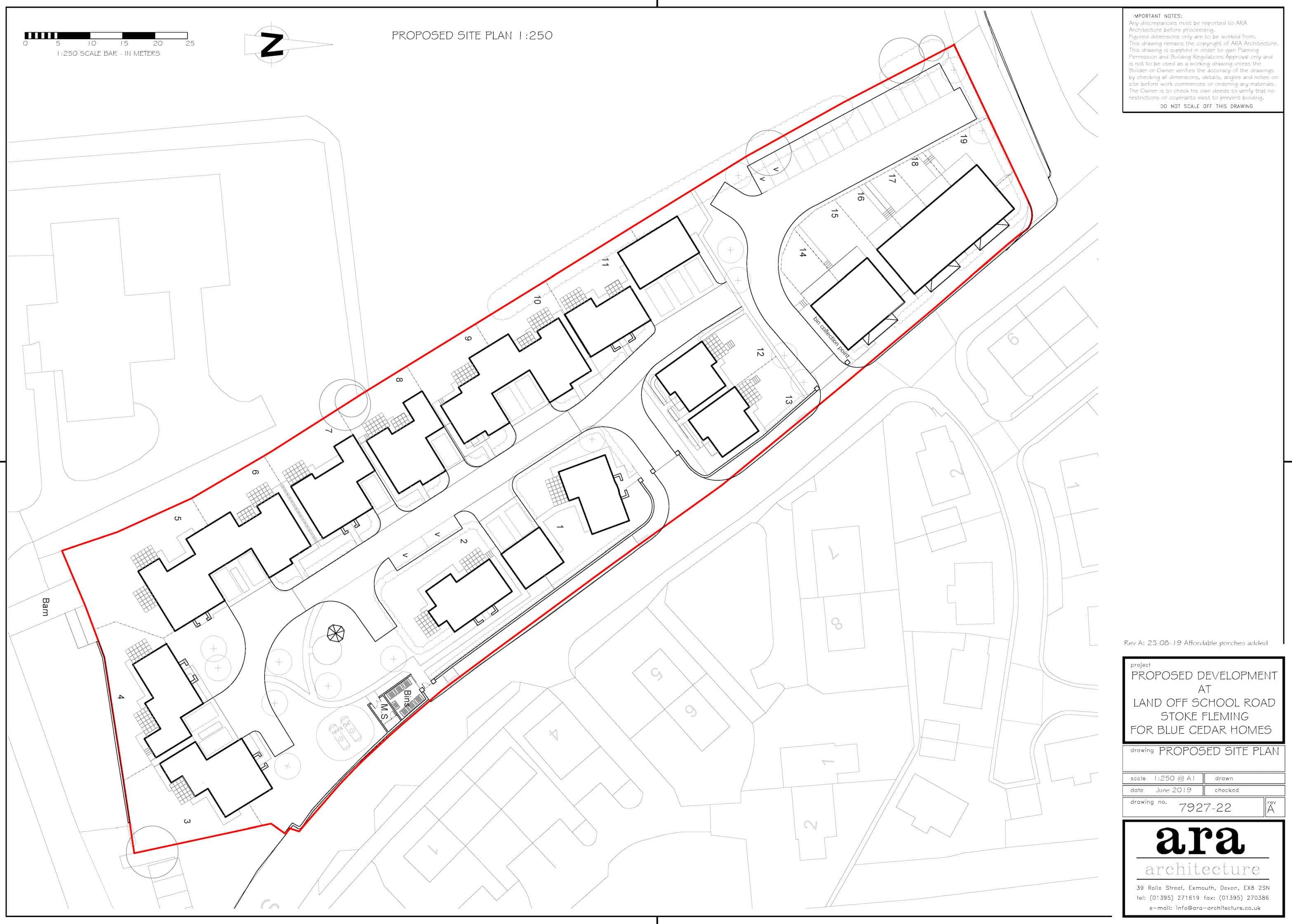
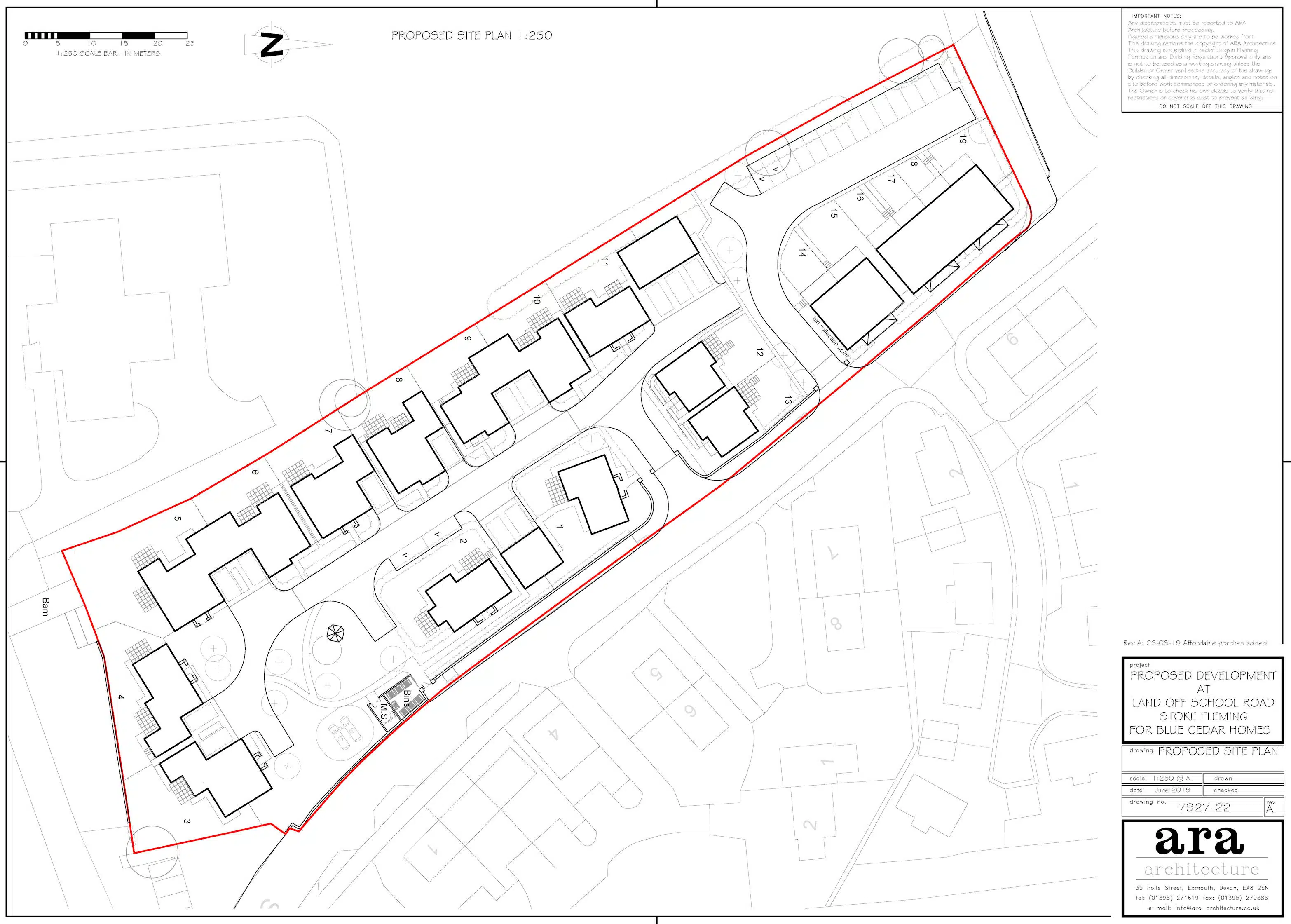
The current scheme has the 6 affordable dwellings off a separate highway access and 13 open market, age-restricted dwellings off another highway access to the south. The planning history allows for the open market dwellings to be either age-restricted or non-age-restricted and the affordable are non-age-restricted. There is a contract in place for the affordable houses with a Golden Brick and Development Agreement.
The site has been stripped and initial level formations completed, the new western boundary hedge has been constructed, both site entrances have been formed with s.278 kerbing installed and the kerbs for the car parking area and associated road strip for the affordable dwellings has been started. The site extends to approximately 0.65 hectares (1.60 acres).
Aerial View of Site
Aerial View
Aerial View
View across the site
View across site
Location Plan
Proposed Site Plan
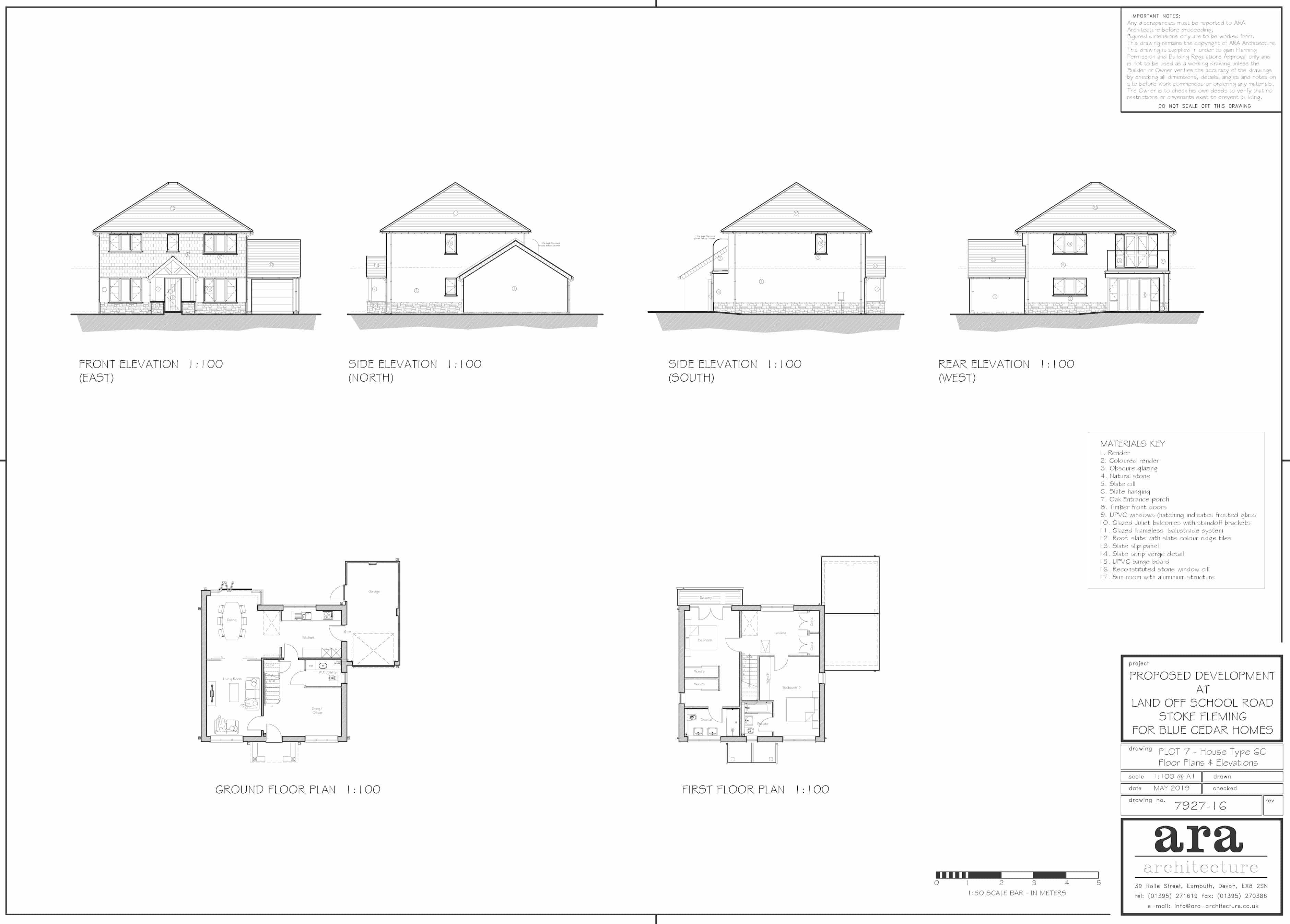
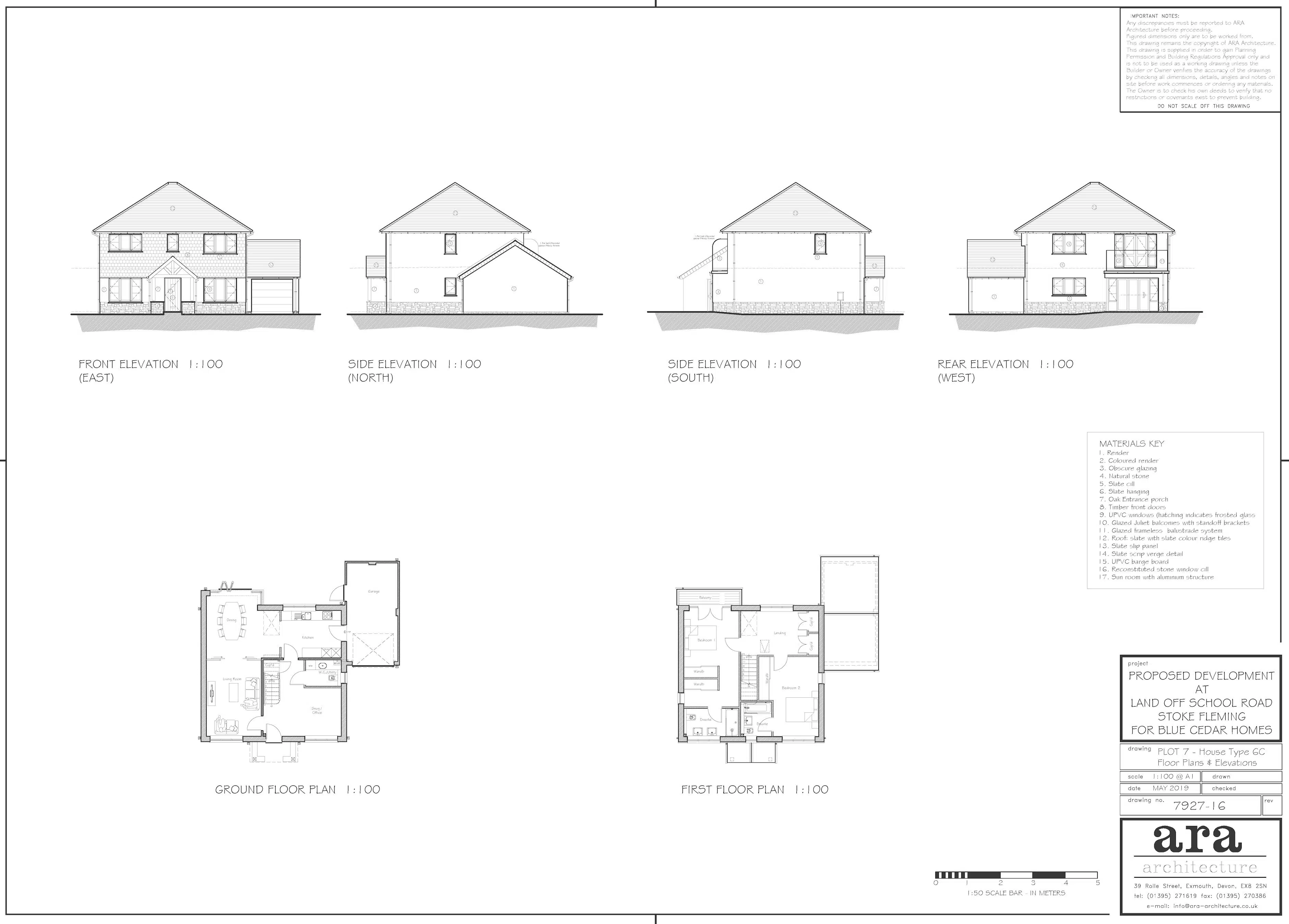
Plot 7







Property reference
623Property details
| Price: | Offers Invited. |
| Status: | Sold |
| Location: | Dartmouth |
| Plots: | Estimated 19 |
| Surveyor: | Philip Taverner |
