Topsham - Station House
FOR SALE BY AUCTION - 15th JUNE 2018.
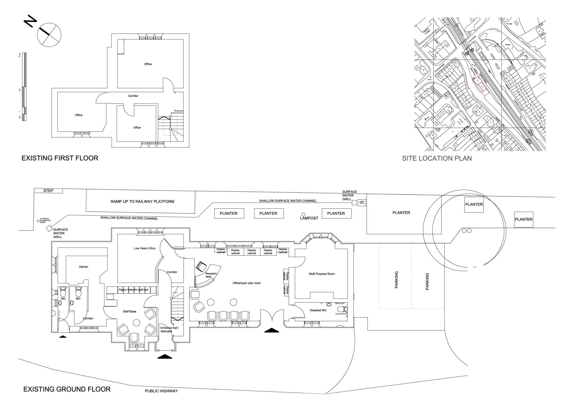
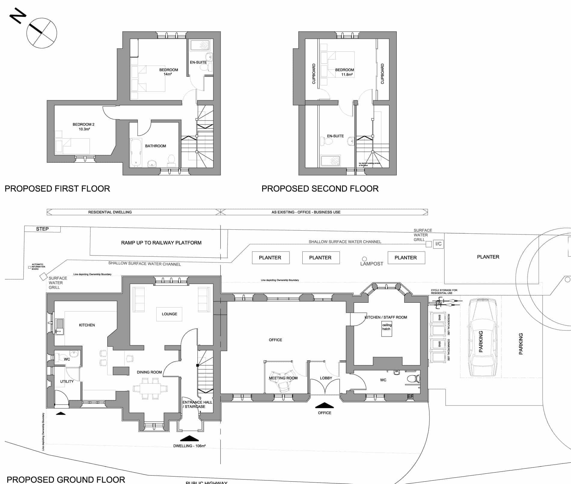
This is a unique opportunity to acquire this historic property in the sought-after estuary town of Topsham. Currently used as offices by local charity Devon in Sight, the property is ripe for development and already benefits from full planning permission and Listed Building consent for change of use of the old station house back into residential use as a dwelling. The adjoining former ticket office which was extensively refurbished in 2011, also lends itself to conversion into an annex or additional accommodation or separate or linked office space to the station house, or possibly a separate residential dwelling or holiday let, subject to the requisite consents. The property also benefits from the adjoining parking spaces which are precious in this town.
Exeter City Council granted Full Planning Permission (Ref.17/0506/03) and Listed Building Consent (Ref.17/0507/07) for subdivision and partial change of use of Station House to a residential dwelling and associated works, at Station House, Holman Way, Topsham, EX3 0EN on 28th June 2017.
The freehold property is being offered for sale by Auction with our joint sole agents, Clive Emson Auctioneers, on 15th June 2018 (unless sold prior) at the St Mellion International Resort, Saltash, PL12 6SD. For all offers and a copy of the full auction catalogue and the legal pack for the property please contact Clive Emson Auctioneers on 01392 366555.
Property from Holman Way
Rear of Property
NW Elevation
Station House Hallway
Former Ticket Office
Existing Floor Plans
Proposed Floor Plans






Property reference
344Property details
| Price: | £350,000 |
| Status: | Sold |
| Location: | Topsham |
| Plots: | Estimated 1 |
| Surveyor: | Philip Taverner |
