Whitestone - Barn For Conversion & Land At Hill Farm Barn
A superb opportunity to acquire a large development plot for a new dwelling in this rural secluded setting. It is situated within an elevated position with stunning rural views over the surrounding countryside, yet it is within close proximity to the city of Exeter. The plot is accessed directly off Pound Lane which joins the Tedburn Road just to the southwest by the Traveller’s Rest Public House.
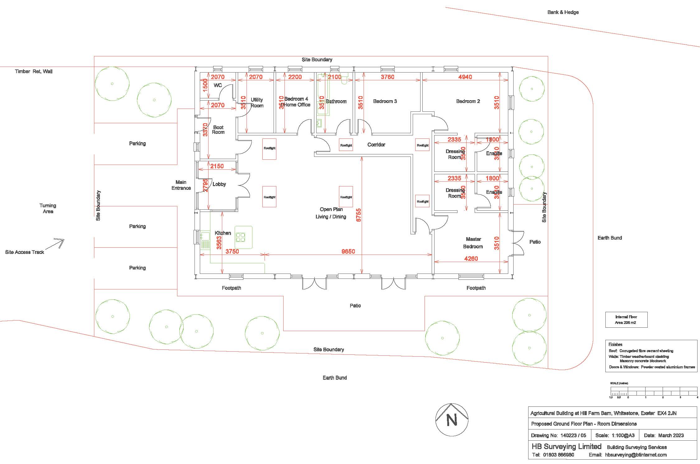
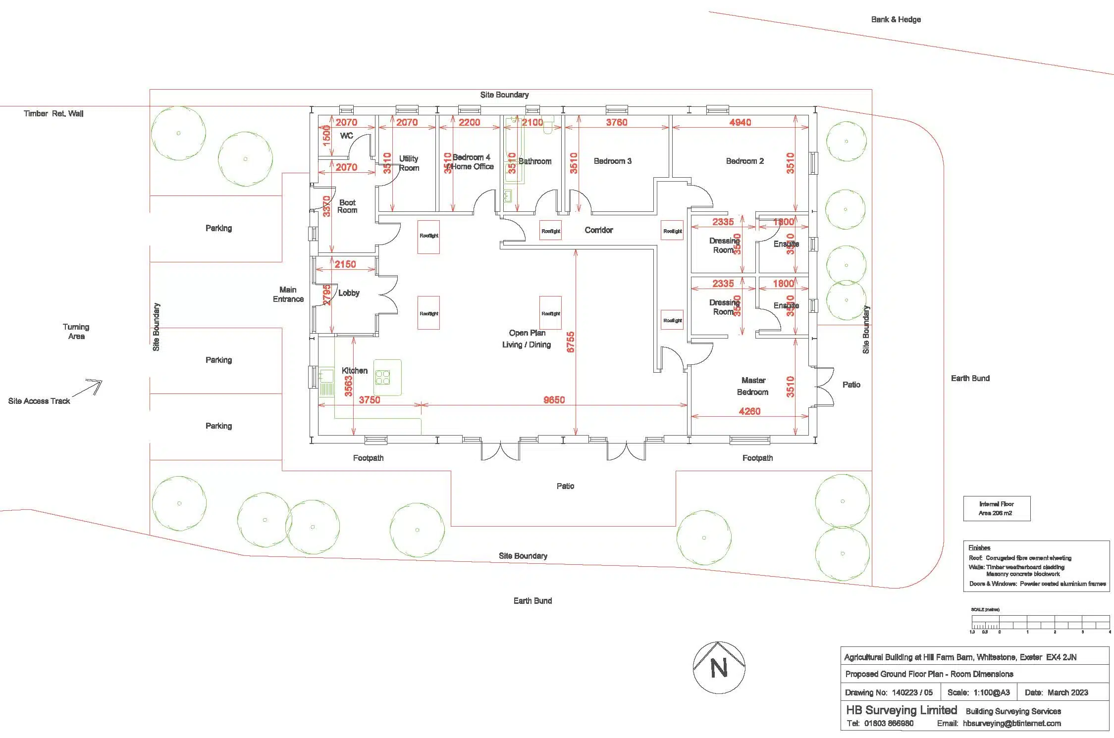
The proposed dwelling will be a conversion of the modern barn which sits at the top of the land and commands excellent views across the countryside to the south. Planning has been granted under a Part 3, Class Q (a) and (b) for change of use of the agricultural building to a dwelling. The proposed new dwelling will be a large single storey, 4 bedroom dwelling with a gross internal floor area of approximately 204.8sqm (2,204sqft).
The land and barn are currently owned by a property to the west, Hill Farm Barn, and they will be retaining the hedge line and land between their house and plot (this boundary will be pegged out and surveyed so that an accurate plan may be produced for Land Registry). They will also retain a right of way across the plot access up to the rear of their property for occasional maintenance of the land and for bringing in firewood deliveries. They currently have vehicular access and parking at the front of their property from Hill Lane and they are seeking an alternative access to the rear of their property, also from Hill Lane, which if secured, then the right of way across the plot will not be required and may be removed from the Title.
SITUATION
The plot is situated within a rural location but only 3 miles west of Exeter on the edge of the popular village of Whitestone. The village has local facilities including a community hall, parish church and there are local pubs, with the Traveller’s Rest pub just a short stroll away down Pound Lane where it meets the Tedburn Road to the southwest. The village provides an easy access route into the city centre where there are a range of regional facilities. Access to the A30 is nearby, providing an easier route to the M5 motorway without having to cross the city.
View from the bund south of the barn looking south over the land and distant rural views beyond
Aerial image
Barn
Land looking north towards Barn
Inside barn
Access gate
OS Location Plan
Proposed Floor Plan
Proposed Elevations








Property reference
914Property details
| Price: | £275,000 |
| Status: | Sold |
| Location: | Exeter |
| Plots: | 1 |
| Surveyor: | Philip Taverner |
