Whitestone - Plot At The Old Shippon, Higher Hare
A superb opportunity to acquire a development plot for a new dwelling in this rural secluded setting. It is situated within an elevated position with stunning panoramic views over the surrounding countryside - to the east back towards Exeter and across to Dartmoor to the west, yet it is within close proximity to the city of Exeter. The plot is accessed directly off Folley Lane, a dead-end road which leads to a single farm and private dwelling at the bottom of the valley.
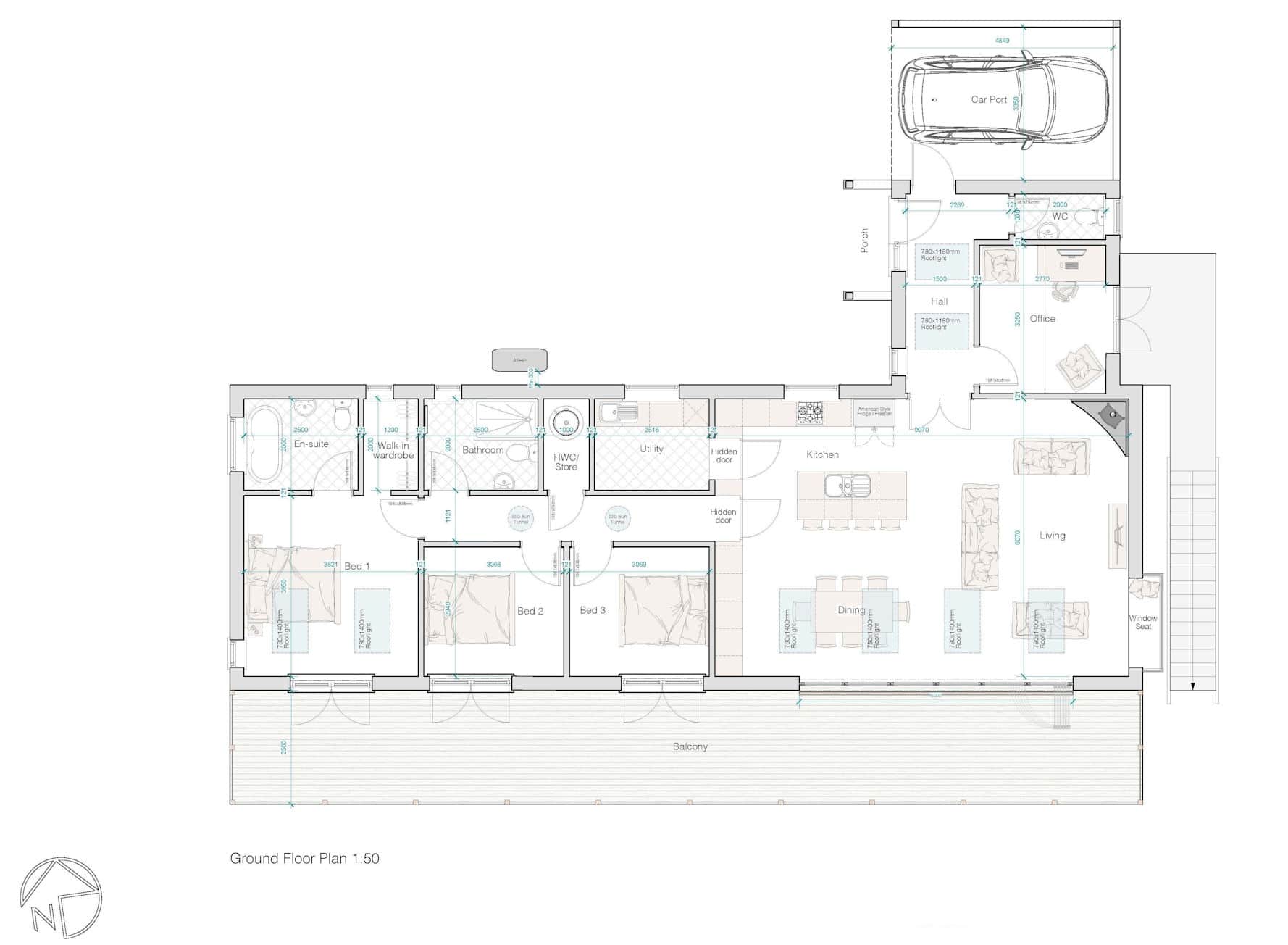
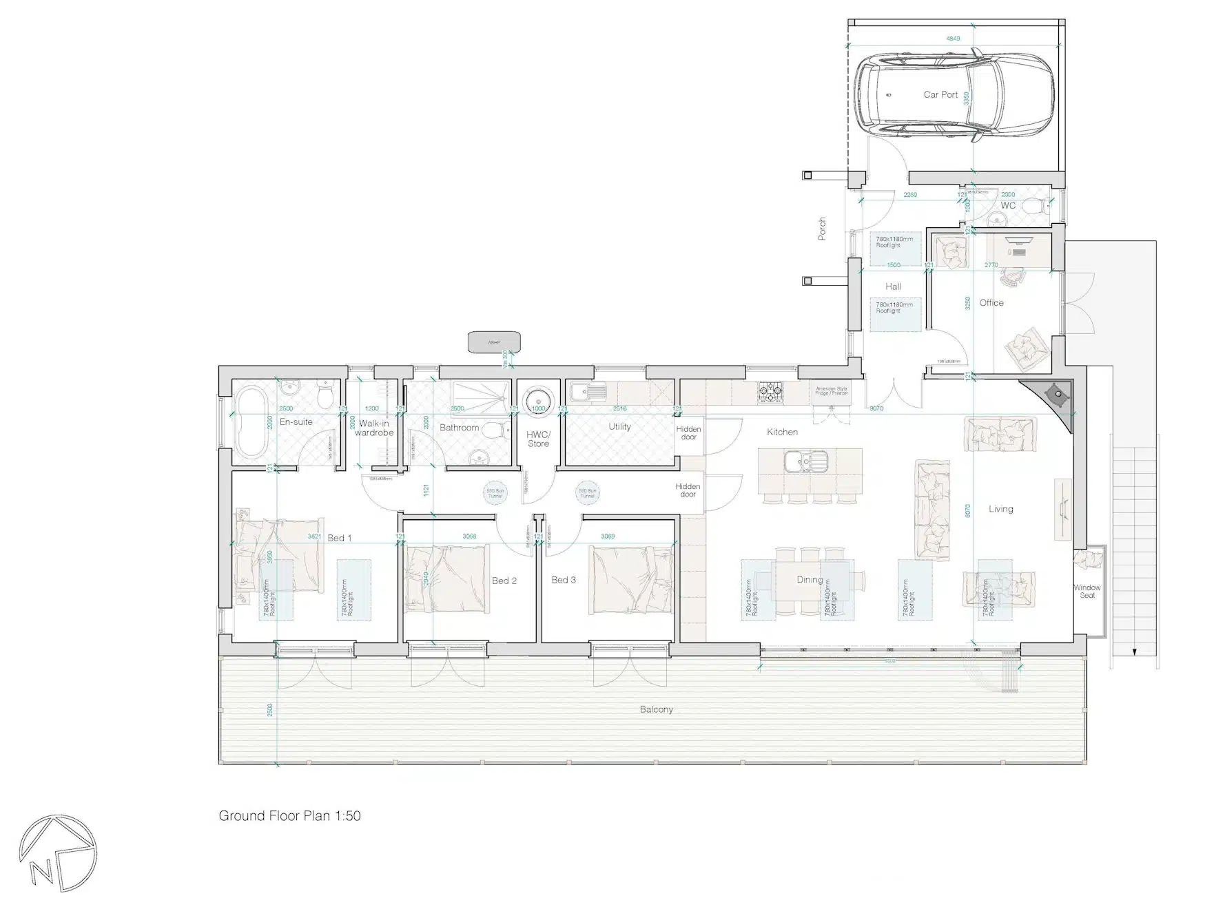
The plot benefits from detailed planning permission (Ref.21/01177/FUL) for a new detached contemporary designed single storey dwelling, with the approved planning drawings showing a gross internal floor area of circa 137sqm (1,475 sqft), together with an attached car port. Along the rear (southern elevation) of the dwelling is a full length cantilevered balcony which will make the most of the far-reaching views from the property, with all 3 bedrooms and the living accommodation running along this elevation of the building and all rooms having direct access onto the balcony.
Situated within an area of great landscape value, the site consists of a triangular shaped plot of just over half an acre which slopes down from the northern boundary along the road to the south.
View from the plot looking east
View oveplot towards Dartmoor
Proposed Site Plan
Proposed Elevations
Proposed Floor Plans
View across plot looking NE
View from plot looking west






Property reference
803Property details
| Price: | Offers in the region of £300,000 |
| Status: | Sold |
| Location: | Exeter |
| Plots: | 1 |
| Surveyor: | Philip Taverner |
