Bugle - Existing Dwelling & Development Site For 10 Houses
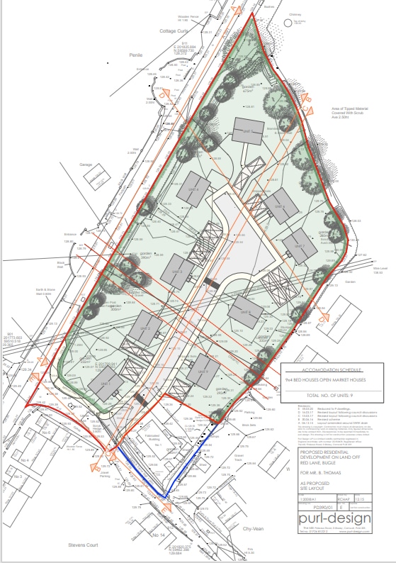
This residential development site, extending to a total of c. 1.38 acres benefits from outline planning approval for 10 new dwellings - described in the planning application as being 4 bedroom two storey houses with single garages. All dwellings are proposed to be open market with no affordable requirement. To the north of the site is further vacant land, with residential development to the east and roads to the south and west with residential properties beyond. The site is level and has historically been utilised for building materials storage.
In additional to the proposed development site, a further section of land in the southern corner is included in the sale - this is occupied at present by a residential property. Interested parties are likely to wish to consider the possibility of replacing this existing dwelling on a one-for-one basis with a new dwelling (subject to all requisite consents)
View across the site
View across part of site
Indicative site plan

Property reference
702Property details
| Price: | £500,000 |
| Status: | Sold |
| Location: | Bugle |
| Plots: | 11 |
| Surveyor: | Alexander Munday |
