Properties
BACK TO LISTINGS
View across plot to the north
View of shared access
Shared access through plot
View across plot to the north
Site location plan
Location plan
Site plan
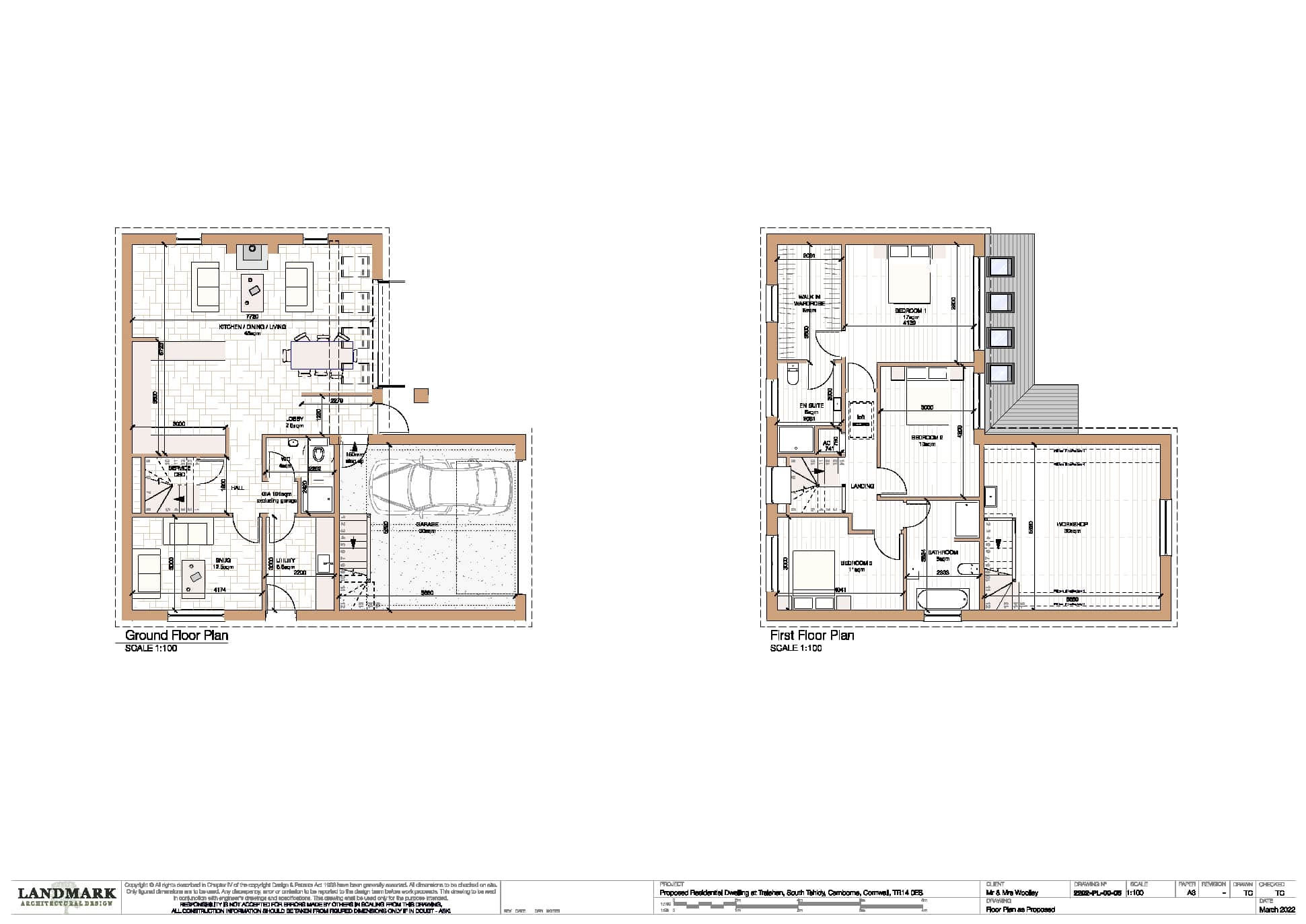
Floor plans
Elevations![]()
![]()
![]()
![]()
![]()
![]()
![]()
![]()
Sold
Camborne, South Tehidy, Plot At Trelehan
KLP are delighted to be offering for sale this level building plot located in the sought after area of South Tehidy, located north of the A30 at Camborne. The plot extends to approximately 0.07ha/0.18acres and is currently part of the garden of Trelehan. The approved drawings show a detached house extending to c.1700sqft / 156sqm, excluding the integral double garage and workshop over. The plot is situated in a cul de sac serving two existing properties (the plot will form the third), adjacent to recently constructed quality detached homes.
View across plot to the north
View of shared access
Shared access through plot
View across plot to the north
Site location plan
Location plan
Site plan
Floor plans
Elevations








Property reference
912Property details
| Price: | £225,000 |
| Status: | Sold |
| Location: | Camborne |
| Plots: | 1 |
| Surveyor: | Darryl Hendley |
