Cullompton, Former Ambulance Station
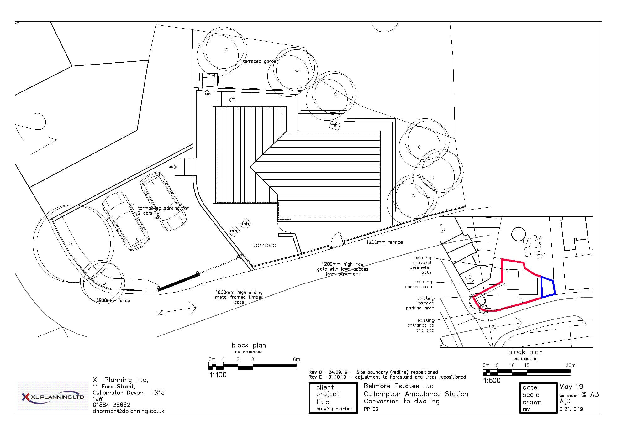
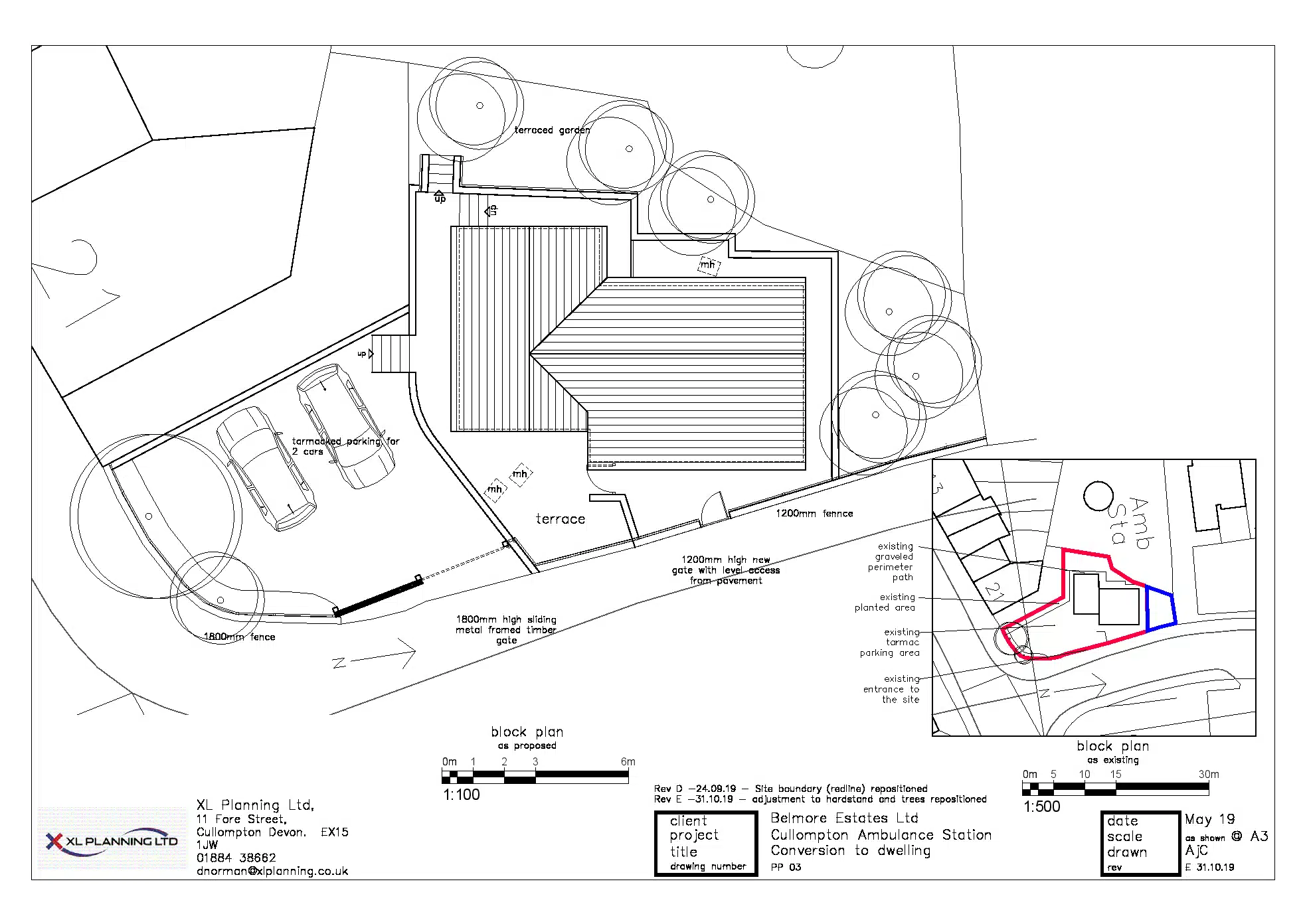
CULLOMPTON - Located on the corner of College Road and Station Road, this former Ambulance Station has planning permission for change of use to a dwelling and offers approximately 54sqm/580sqft of internal floor space. The approved floor layout shows an open plan kitchen and living space, two further rooms one with an ensuite shower room and a further separate bathroom. Externally the approved plans show car parking for 2 cars whilst to the rear is a small garden area. The property is of a substantial construction and the designed scheme requires limited external alterations to facilitate the proposed residential use. Also offered for sale and adjoining the northern boundary is a small parcel of land which potentially may facilitate access to the land to the west, currently the garden of No.13 Higher Street.
View of east elevation from College Road
Existing garage
Exisiting internal
East elevation
East elevation
Exisitng internal
Block Plan
Existing floor plan and elevations
Location plan






Property reference
502Property details
| Price: | £135,000 |
| Status: | Sold |
| Location: | Cullompton |
| Plots: | 1 |
| Surveyor: | Darryl Hendley |
