Harlyn Bay - Site For 2 Apartments
This is a unique development opportunity, set within the newly developed ‘Karrek’ scheme at Harlyn Bay, near Padstow. Planning approval (ref. PA23/03132) grants permission for the change of use of part of the ground floor of the development from what was proposed to be a commercial space (Class E) to instead form two, 2 bedroom apartments. Each apartment is proposed with two double bedrooms (master en-suite and in Apart. 15 a walk in wardrobe), a further bathroom and open plan kitchen, lounge and living room area. Apartment 15 has a proposed floor space of c. 90sqm (969sqft) and apartment 16 c. 78.5sqm (845sqft). Both apartments will benefit from one designated parking space within the Karrek car park.
Interested parties should note that the planning approval restricts the use of the apartments to holiday use only and prevents them from being used as a main residence. There are no restrictions on length of occupancy however.
Aerial view of development with location of apartments arrowed (CGI Image)
Photo of existing building
Photo of existing building
Harlyn Bay Beach
Parking spaces for apartments
Existing interior space
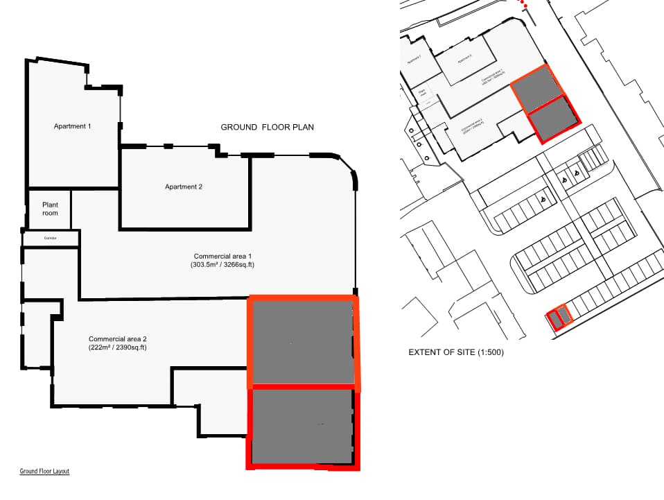
Proposed site plan with apartments shaded grey
Harlyn Bay







Property reference
929Property details
| Price: | £525,000 |
| Status: | Sold |
| Location: | Padstow |
| Plots: | 2 |
| Surveyor: | Alexander Munday |
