Kennford - Former Haldon Thatch & Garage Site
The site of the former Haldon Thatch Hotel/restaurant (Est. circa 1930) and adjoining former petrol filling station, all of which extends to approximately 0.71 hectares (1.75 acres). The site had planning permission for a large detached house with a gross internal floor area of approximately 200sqm (2,152sqft) and a restaurant building of approximately 276sqm (2,970sqft) all situated on the southern area of the site where the former Haldon Thatch once stood, before a fire some years ago (October 2003). The owner subsequently acquired the adjoining former petrol filling station to the north and we are informed that the former fuel tanks have been decommissioned and backfilled, but are still in the ground.
The property is situated in a prominent position on the northern slopes of Haldon Hill, between the Old Haldon Hill Road and the north bound A380 from Torbay to Exeter. The site was internationally recognised in its days as a hotel/guest house and still benefits from an impressive panoramic view of countryside, both locally and beyond the City of Exeter, which lies 5 miles away according to the listed 1890s milestone within Haldon Thatch. All major routes are quickly accessible, as are the cycling and nature trail amenities of Haldon Forest Park, whilst Dartmoor and the seaside towns of Dawlish, Teignmouth and Torbay are a short drive away. It offers various potential redevelopment options (subject to requisite consents) beyond the current planning permission.
View across the former garage site looking North
OS Plan with approximate boundary highlighted
Old Site Plan
Old Approved House Plans
Old Approved House Elevations
Old Approved Restaurant Elevations
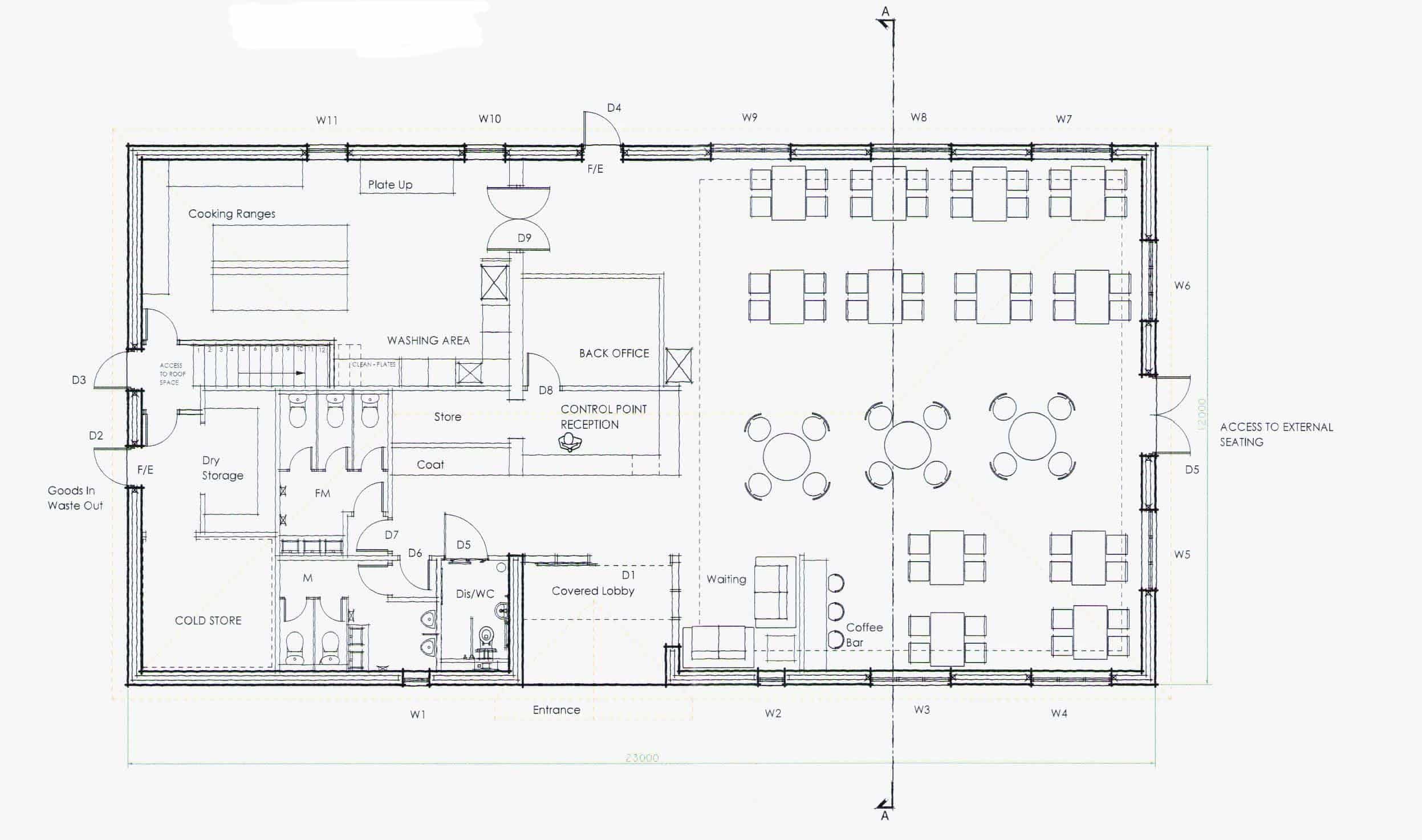
Old Approved Restaurant Floor Plan
Historical Aerial Image
View from garage forecourt looking South








Property reference
696Property details
| Price: | Offers in the region of £500,000 |
| Status: | Sold |
| Location: | Exeter |
| Plots: | Estimated 3 |
| Surveyor: | Philip Taverner |
