Martock - 18 East Street
This is an excellent opportunity to acquire a development project comprising an existing 3 bedroomed detached hamstone house together with the benefit of detailed planning permission (Ref.16/01012/FUL) for the construction of 2 new bungalows in the rear garden area. The property extends to approximately 0.5 acres and is situated within a central and sought-after area of this popular South Somerset village, which benefits from a variety of shops, schools, post office, good local bus services, other amenities and good transport links with the nearby A303.
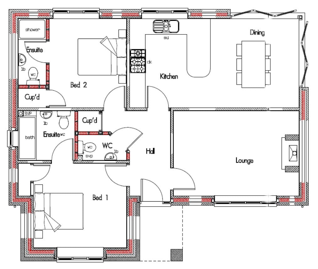
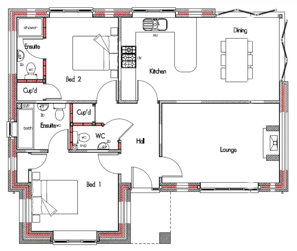
The proposed plans show the demolition of the existing lean-to w/c to the side of the existing house which will facilitate the access driveway to continue to the two new bungalows and parking to the rear of the existing house. The bungalow on the first plot is illustrated as a 2 bedroomed bungalow with a gross internal floor area of approximately 81.5m2 (880sqft). There is a proposed garage block between Plot 1 and the existing house which is to provide a single garage for each dwelling and there are 2 parking spaces illustrated on the plan for each dwelling as well. Plot 2 is tucked away at the rear of the garden and therefore benefits from a larger plot and although currently illustrated as a 2 bedroomed bungalow with a gross internal floor area of approximately 102.3m2 (1,100sqft), excluding garage, there may well be scope to amend the plans to a 3 bedroomed bungalow with detached garage to the front, subject to requisite planning consents.
South Somerset Council granted detailed planning permission (Ref.16/01012/FUL) for demolition of attached lean-to on side elevation of dwelling and demolition of all timber buildings at the rear of the site; the erection of two dwellings and the formation of an access driveway, parking and turning at 18 East Street, Martock, Somerset, TA12 6NG on 4th July 2016.
Existing House and Access Drive
Proposed Site Plan
Rear Garden Sheds
Kitchen
Lounge
Master Bedroom
Existing House Floor Plan
Plot 1 Proposed Floor Plan
Plot 2 Proposed Floor Plan








Property reference
162Property details
| Price: | Offers in the region of £495,000 |
| Status: | Sold |
| Location: | Martock |
| Plots: | 3 |
| Surveyor: | Philip Taverner |
