Properties
BACK TO LISTINGS
View showing the existing barns![]()
![]()
![]()
![]()
![]()
![]()
![]()
![]()
![]()
![]()
![]()
Sold
Newton Poppleford - Site At Parsons Farm
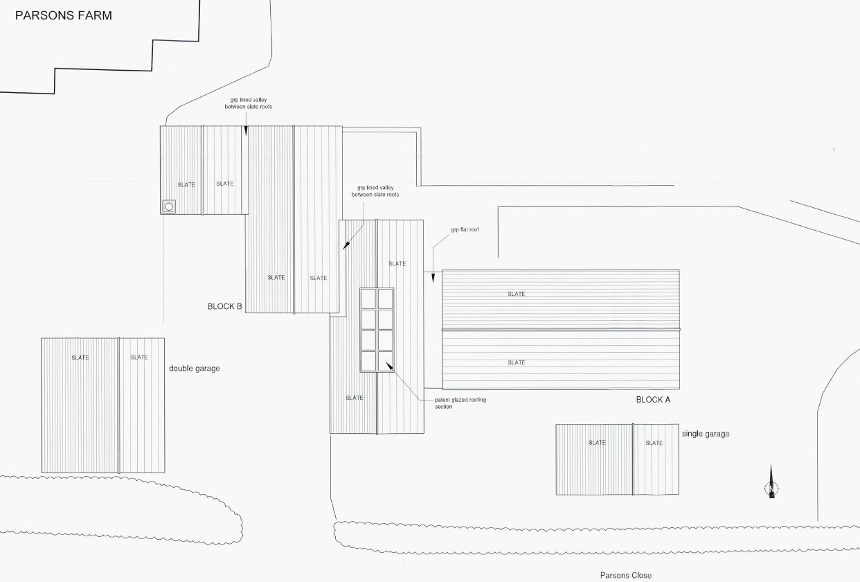
We are delighted to offer for sale these barns for conversion and extension to form a dwelling, set in the popular East Devon village of Newton Poppleford. Detailed planning consent and Listed Building consent (the barns fall within the curtilage of a Listed Building) were both approved in April 2015 for works to form a new detached three bedroomed dwelling with detached garage.
View showing the existing barns











Property reference
59Property details
| Price: | £135,000 |
| Status: | Sold |
| Location: | Newton Poppleford |
| Plots: | 1 |
| Surveyor: | Alexander Munday |
