Properties
BACK TO LISTINGS
Existing west elevation
PART WEST ELEVATION
WEST ELEVATION
INTERNAL VIEW
INTERNAL VIEW
LOCATION PLAN and APPROX CAR PARKING AREA IN YELLOW
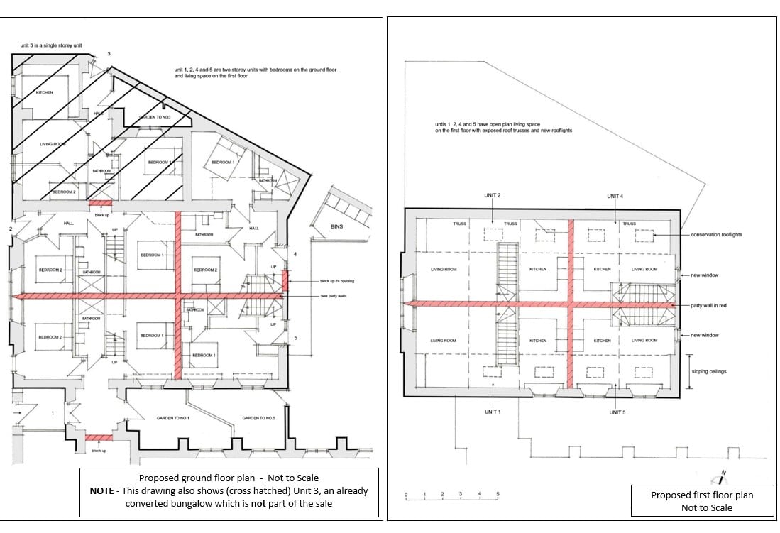
Floor Plans
Illustrative Alternative Layout floor plans
CGI of Illustrative Alternative layout![]()
![]()
![]()
![]()
![]()
![]()
![]()
![]()
Sold
Paignton, Phase 2, St Johns, Dartmouth Road
PAIGNTON - KLP are delighted to offer this centrally located conversion opportunity of a former church hall to form 4 x two storey dwellings units. Planning Permission and Listed Building Consent was granted for five units in total, the fifth unit has already been converted and comprises an attached bungalow, this is not part of the sale. We understand that the property is of solid masonry construction with stone elevations beneath a pitched slate roof. Internally the property has timber floors, painted plaster walls and a vaulted ceiling with a small single storey section offering access onto Dartmouth Road. An adjacent car parking area is included in the sale accessed from Commercial Road, see location plans below.
Existing west elevation
PART WEST ELEVATION
WEST ELEVATION
INTERNAL VIEW
INTERNAL VIEW
LOCATION PLAN and APPROX CAR PARKING AREA IN YELLOW
Floor Plans
Illustrative Alternative Layout floor plans
CGI of Illustrative Alternative layout








Property reference
800Property details
| Price: | £350,000 |
| Status: | Sold |
| Location: | Paignton |
| Plots: | 4 |
| Surveyor: | Darryl Hendley |
