Pitney - Site For 5 Dwellings, Butterwell Farm
This is an excellent opportunity to acquire a development project with full detailed Planning Permission and Listed Building consent for development of 5 dwellings. The approved plans are for 2 large detached new build houses, 1 large detached part conversion, part new build house and 2 semi-detached, single storey smaller dwellings which are mainly conversion with an element of new build extension.
The former barns that were due to be demolished under the planning permission have already been demolished and the site cleared ready for development to commence.
The South Somerset village of Pitney is conveniently located just to the north of the B3153, between Langport (c. 2.5 miles to the west) and Somerton (c. 3 miles to the east). The village has a Church, a Village Hall, Farm Shop and a Public House (Halfway House).
View across the cleared site looking south east
View across the site from unit one looking west
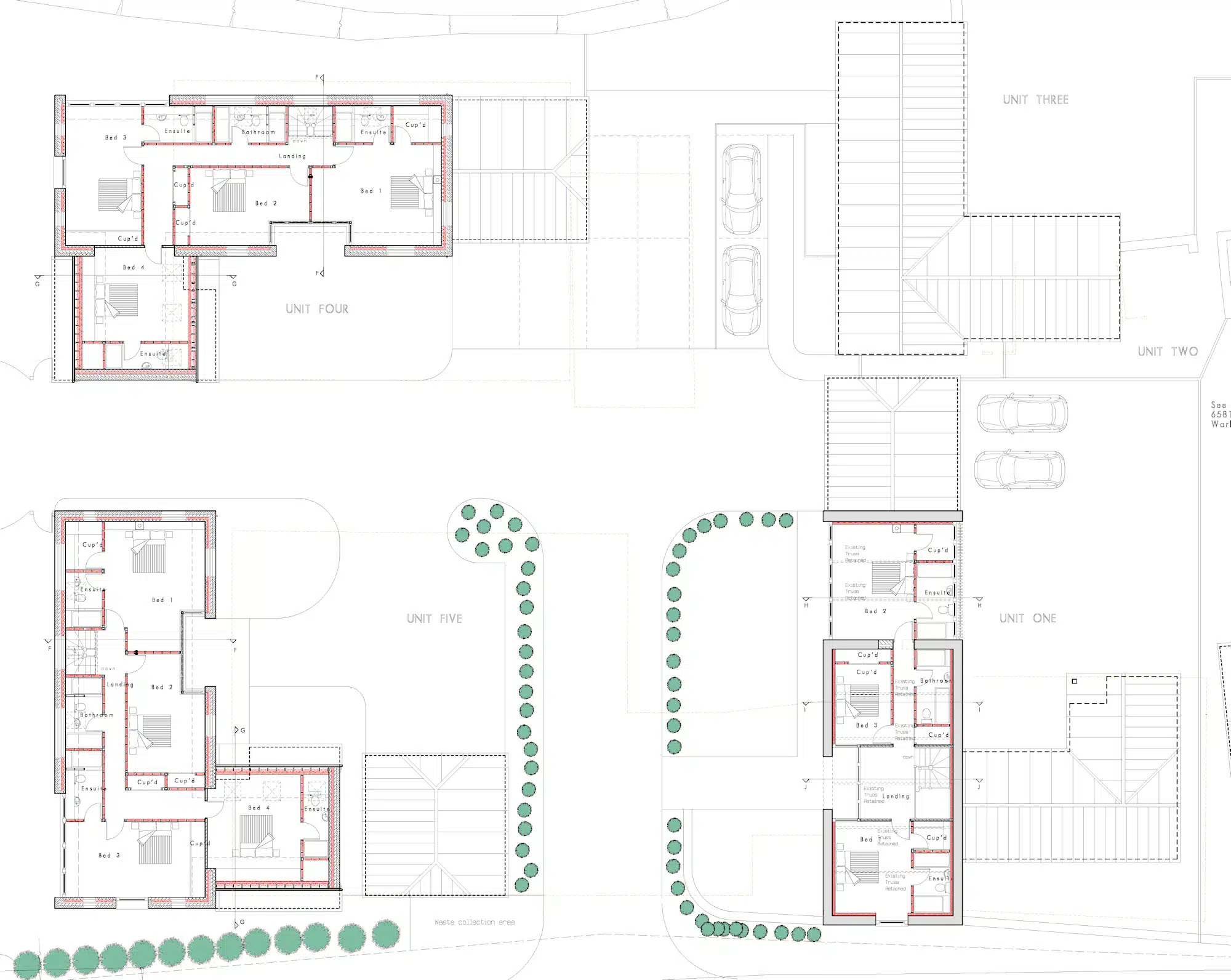
Site Plan
Main site looking towards unit 1 from NW
Unit 3 looking west
Unit one from the road looking NW
Proposed GF Plans
Proposed FF Plans
Site southern boundary








Property reference
444Property details
| Price: | Offers in the region of £610,000 |
| Status: | Sold |
| Location: | Langport |
| Plots: | 5 |
| Surveyor: | Philip Taverner |
