Plymouth, Plot 24 West Park
PLYMOUTH - KLP are delighted to offer this single building plot in West Park, Plymouth, which benefits from approval of reserved matters for the construction of a new four bedroom detached house with garage. West Park consists of a site of 1.33ha, formerly the location of West Park Primary School, but subsequently granted outline planning permission under ref. 15/00486/OUT for the construction of 32 self-build dwellings. The site is currently under construction with several houses completed/nearing completion, others at an early stage of build and other plots awaiting commencement. The planning approval for Plot 24 shows the proposed new dwelling to be a two storey, detached house with attached garage. Building works have been undertaken to ground floor slab level.
View over Plot 24 looking NW
View across Plot 24 looking SE
Site location plan, plot 24 highlighted in yellow
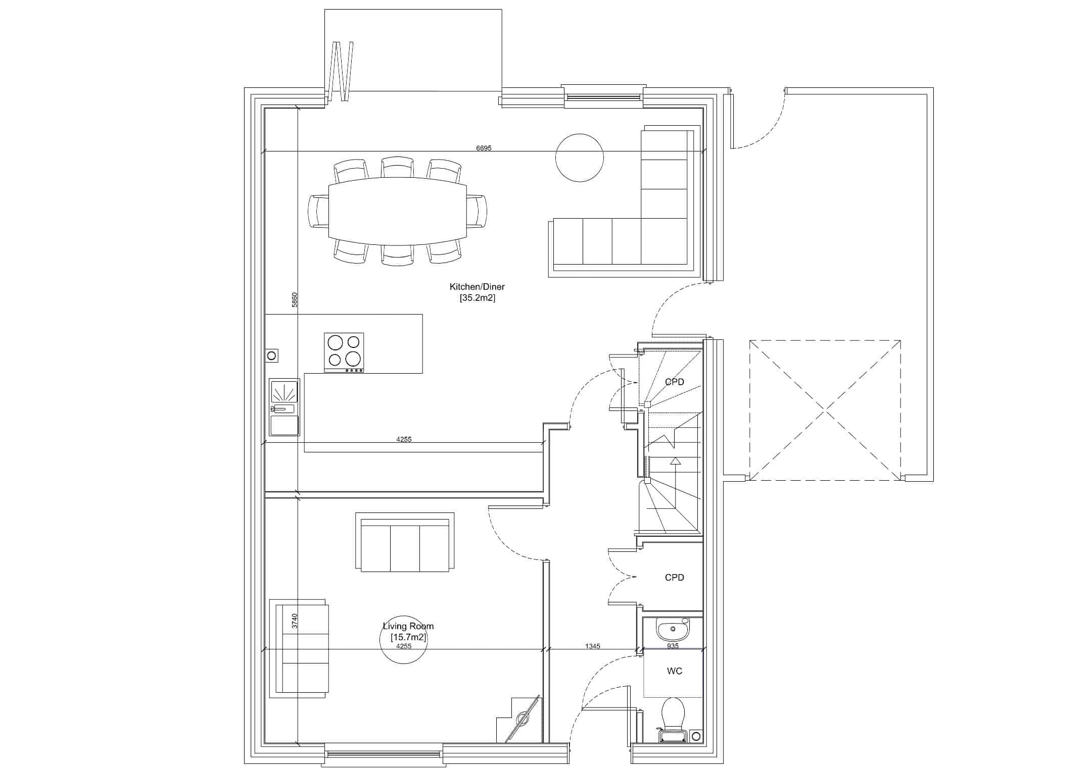
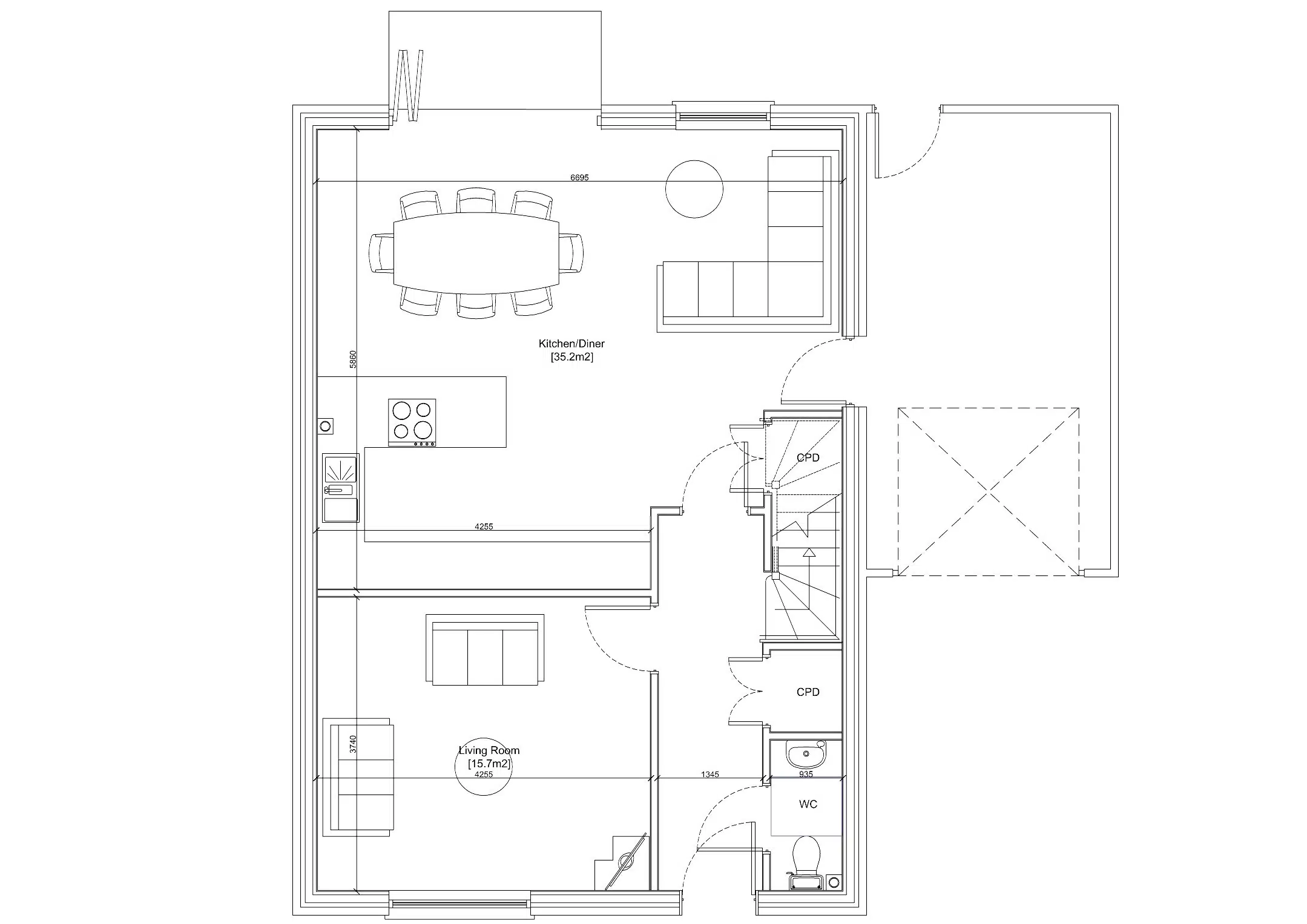
Proposed ground floor
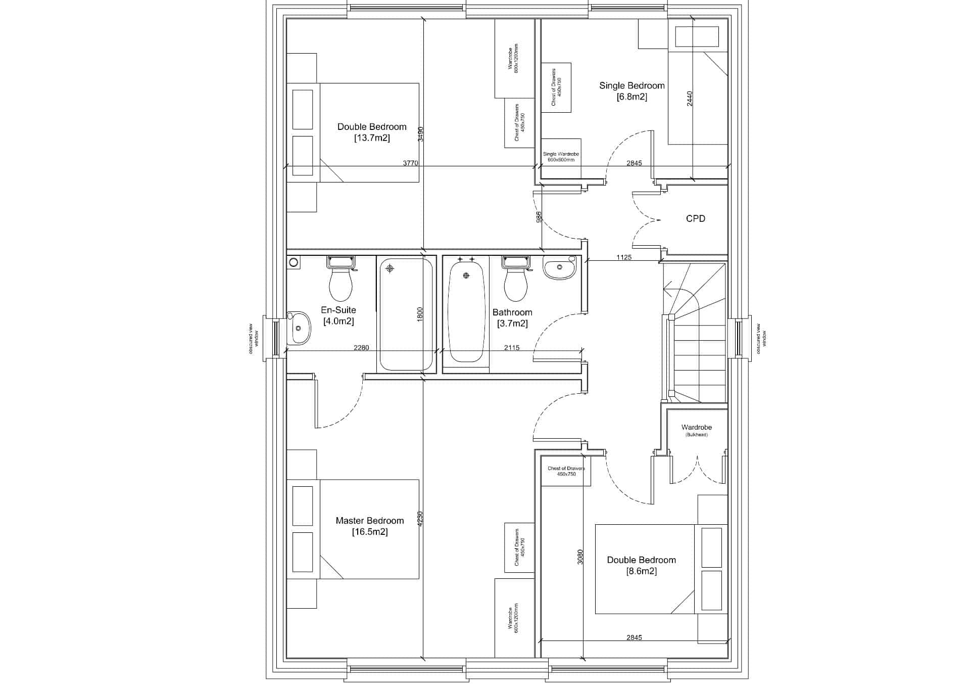
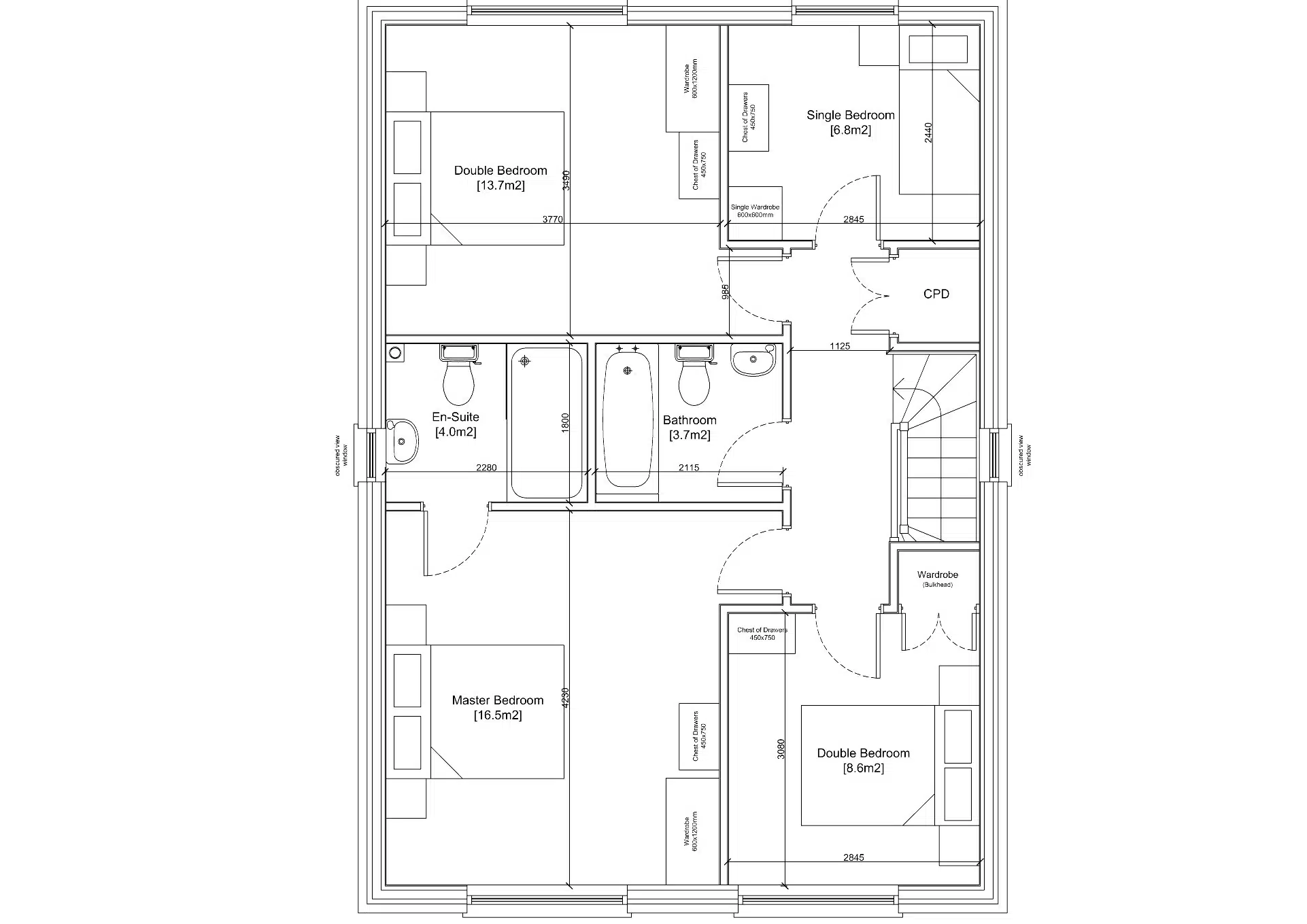
Proposed first floor
Proposed elevations 





Property reference
739Property details
| Price: | £100,000 |
| Status: | Sold |
| Location: | Plymouth |
| Plots: | 1 |
| Surveyor: | Darryl Hendley |
