St Mabyn - Chapel Field - Site For 27 Dwellings
This is an attractive and self contained greenfield residential development site set on the northern edge of St Mabyn in North Cornwall and which extends to a total area of c. 1.85 ha / 4.56 acres. The site is ideally located for both village life and access to the nearby towns of Wadebridge (4 miles), Bodmin (6 miles) and Padstow (12 miles). The site is relatively level, with a very gradual slope from east to west.
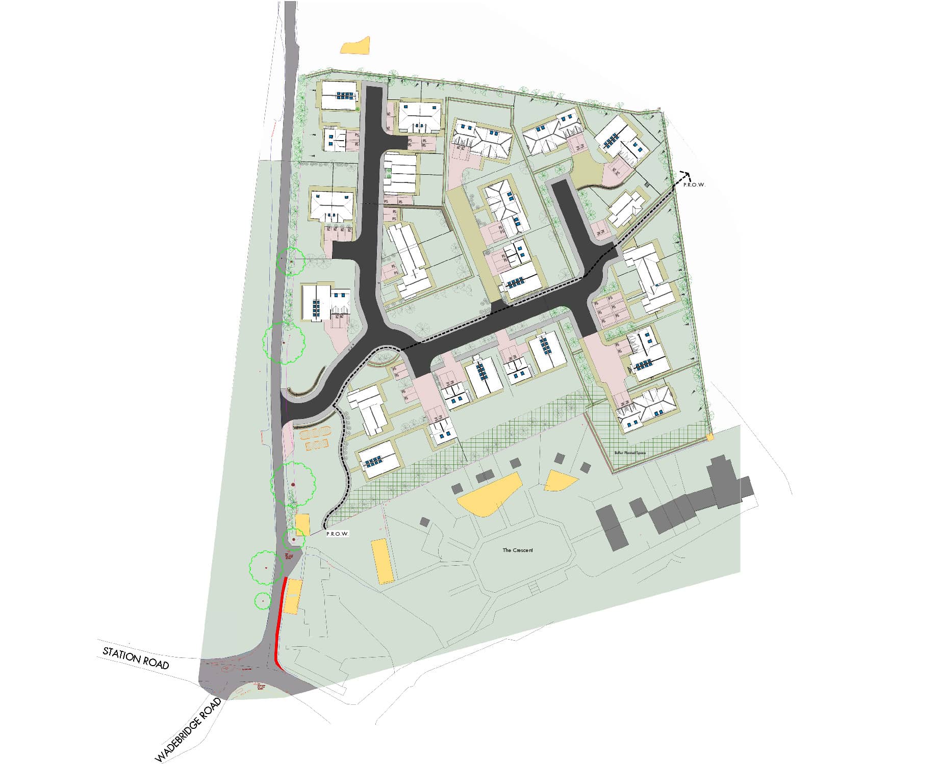
The proposed development has been approved in two separate planning applications - the first consists of approval for 7 open market and 7 affordable (70% rent, 30% intermediate housing) dwellings. The open market plots have approved consent for the construction of large detached
four bedroom houses with plot areas for ranging from 528sqm (0.13 acres) to 886sqm (0.22 acres). The second application approves a further 5 open market and 8 affordable (50% rent, 50% intermediate) dwellings. Once again, the open market plots have consent for the construction of large detached four bedroom houses with plot areas for ranging from 494sqm (0.12 acres) to 595sqm (0.15 acres).
The site is proposed to be accessed via a new roadway to be formed off the public highway on the western side of the site.
View over part of the site facing west
Perspective images of proposed development
Aerial View of the site
Aerial View of the site
CGI of proposed development
CGI of proposed development
Proposed site layout






Property reference
202Property details
| Price: | Offers Invited. |
| Status: | Sold |
| Location: | St Mabyn |
| Plots: | 27 |
| Surveyor: | Alexander Munday |
