Lyme Regis - Uplyme - Plot Adj Dell Cottage, Lime Kiln Lane
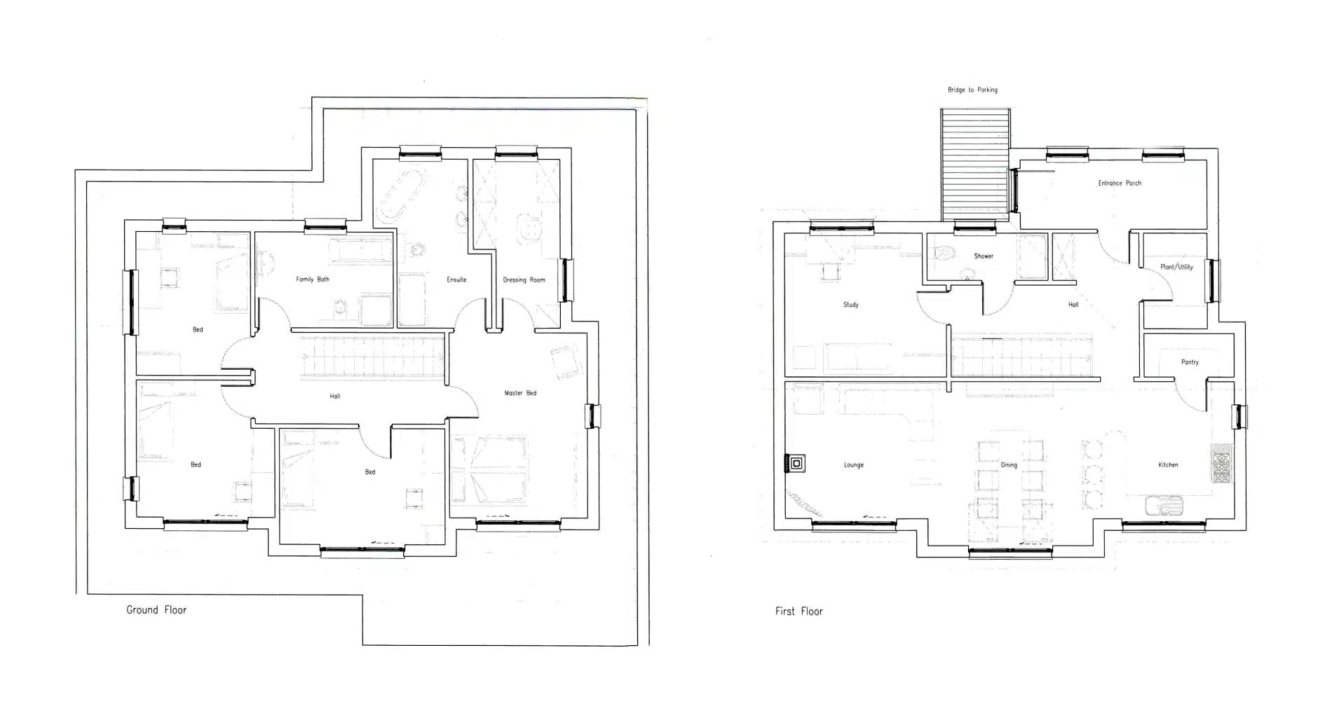
A superb opportunity to acquire a building plot with detailed planning permission for a large detached 4/5 bedroom house with a gross internal floor area of approximately 197.2m2 (2,123 sqft). The design is based upon a German Hanse Haus who specialise in energy efficient houses, and the approved plans show the living accommodation currently on the upper floor to utilise the existing ground levels and to benefit from the far-reaching views across the valley to the south and east, with distant sea views from the upper floor. The plot is located off a private drive and is situated within a short distance of the local shop/post office, primary school, village hall, playing fields, church and pub, and only circa 2 miles from the centre of Lyme Regis, with a scenic walk to the town alongside the River Lym and its tributaries.
View over plot looking south east
Aerial view of plot
View across Plot
View across Plot
Proposed Site Plan
OS Plan
Proposed Floor Plans
Proposed Elevations
CGI








Property reference
179Property details
| Price: | Offers in the region of £350,000 |
| Status: | Sold |
| Location: | Lyme Regis |
| Plots: | 1 |
| Surveyor: | Philip Taverner |
